
ALPHAUS Immobilien GmbH
Herrn Tim Borufka
+49 ···
Nr. anzeigenPreise & Kosten
Provision für Käufer
2,38 % inkl. MwSt.
Lage
Die Immobilie befindet sich in einer ruhigen und gewachsenen Wohnlage der oberbayerischen Gemeinde Otterfing. Das direkte Umfeld ist geprägt von gepflegten Wohnhäusern, viel Grün und einer angenehmen Nachbarschaft, die ein ruhiges und familienfreundliches Wohnumfeld schafft. Spazier- und Radwege sowie weitläufige Wiesen und...
Die Wohnung
Wohnungslage
1. Geschoss (Dachgeschoss)
Bezug
sofort
Wohnanlage
Energie & Heizung
Warum sehe ich diese Anzeige? – Du siehst diese Anzeige basierend auf Ihrer Navigation auf unserer Website und den Suchkriterien, die du verwendet hast.
Energieausweistyp
Bedarfsausweis
Gebäudetyp
Wohngebäude
Wesentliche Energieträger
Öl
Gültigkeit
05.12.2024 bis 04.12.2034
Effizienzklasse
F
Endenergiebedarf
172,70 kWh/(m²·a)
Weitere Energiedaten
Energieträger
Öl
Details
Objektbeschreibung
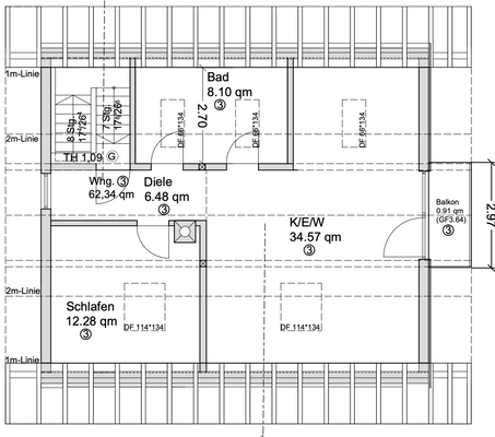
Diese gepflegte und modernisierte Erdgeschosswohnung befindet sich in einem überschaubaren Mehrfamilienhaus mit nur zwei Etagen und überzeugt durch eine angenehme Wohnatmosphäre, eine durchdachte Raumaufteilung sowie attraktive Außenflächen. Das Gebäude wurde im Jahr 1970 errichtet und im Jahr 2025 umfassend modernisiert...
Ausstattung
Ca. 62 m² Wohnfläche
Großes helles Wohnzimmer mit offener Küche
Helles Schlafzimmer
beeindruckender Flur mit hohen Decken
Modernes Badezimmer mit Badewanne und Fenster
Balkon
Eigener Kellerraum mit zusätzlichem Stauraum
Stellplatz direkt am Haus
Parkettboden in den Wohnräumen für eine warme und...
Preisinformation
1 Stellplatz
Weitere Informationen
Stichworte
Stellplatz vorhanden, Anzahl der Schlafzimmer: 2, Anzahl der Badezimmer: 1, Anzahl Balkone: 1, 2 Etagen, modernisiert: 2025, modernisiert
Anbieter der Immobilie
Online-ID: 2nabw5x
Referenznummer: TB7471#PsmnLn
Finde Angebote wie dieses
Hier geht es zu unserem Impressum, den Allgemeinen Geschäftsbedingungen, den Hinweisen zum Datenschutz und nutzungsbasierter Online-Werbung.