
Engel & Völkers Immobilien Deutschland GmbH
Engel & Völkers Hamburg MMC
+49 ···
Nr. anzeigenPreise & Kosten
Provision für Käufer
3.57 % inkl. gesetzl. MwSt. Weitere Informationen siehe Provisionshinweis.
Lage
Die Bartelsstraße liegt eingebettet in eines der angesagtesten und vielfältigsten Viertel Hamburgs - die Sternschanze. Geprägt von historischer Bausubstanz, charmanten Seitenstraßen und einer gewachsenen Nachbarschaft entfaltet die Umgebung eine besondere Mischung aus Urbanität und entspannter Gelassenheit. Nur wenige...
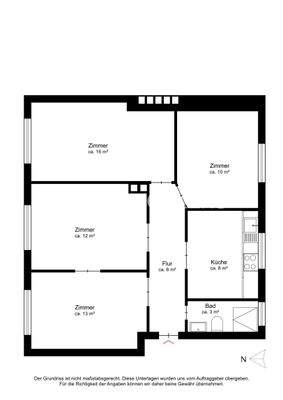
Die Wohnung
Kategorie
Apartment
Wohnungslage
2. Geschoss
Wohnanlage
Energie & Heizung
Warum sehe ich diese Anzeige? – Du siehst diese Anzeige basierend auf Ihrer Navigation auf unserer Website und den Suchkriterien, die du verwendet hast.
Energieausweistyp
Verbrauchsausweis
Gebäudetyp
Wohngebäude
Baujahr laut Energieausweis
1918
Gültigkeit
seit 30.09.2025
Effizienzklasse
F
Weitere Energiedaten
Energieträger
Gas
Heizungsart
Zentralheizung
Details
Objektbeschreibung
Hinter der frisch sanierten Fassade und unter einem kürzlich erneuerten Dach entfaltet sich eine Altbauwohnung in der Sternschanze, die durch Ruhe, Charakter und eine klare Raumstruktur überzeugt. Extrem ruhig in Innenhoflage gelegen, genießen Sie hier einen idyllischen Blick in die grünen Baumkronen, während das pulsierende...
Ausstattung
Blick ins Grüne
Weitere Informationen
Provisionshinweis
3.57 % inkl. gesetzl. MwSt.
Kommt auf Grundlage unserer Maklerleistung ein Kaufvertrag über das Objekt zustande, ist der Kunde verpflichtet, eine Maklerprovision in Höhe von 3,57 % einschließlich der gesetzlichen Umsatzsteuer zu zahlen. Die Berechnungsgrundlage für die Provision ist der Gesamtkaufpreis...
Anbieter der Immobilie
Online-ID: 2nabk5q
Referenznummer: I-047XTZ-W-047XTZ
Finde Angebote wie dieses
Hier geht es zu unserem Impressum, den Allgemeinen Geschäftsbedingungen, den Hinweisen zum Datenschutz und nutzungsbasierter Online-Werbung.