

Immolike Immobilien
Herr Andreas Bejm
060 ···
Nr. anzeigenPreise & Kosten
Provision für Käufer
3,57% inkl. MwSt
Für weitere Informationen oder zur Vereinbarung eines Besichtigungstermins stehen wir selbstverständlich gern zur Verfügung. Weitere Informationen siehe Provisionshinweis.
Abschreibung/Anlage
Denkmalschutz-Afa
Lage
Die Immobilie befindet sich in 36396 Steinau an der Straße, dem bekannten, einstigen Wohnort der Brüder Grimm. Vor diesem Hintergrund wird sie auch die Märchenstadt genannt, die wie kaum ein anderer Ort Geschichte, Charme und Lebensqualität miteinander verbindet.
Eingebettet in die reizvolle Landschaft am Rande des...
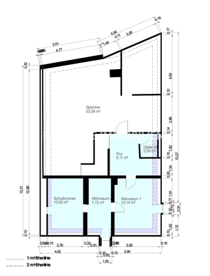
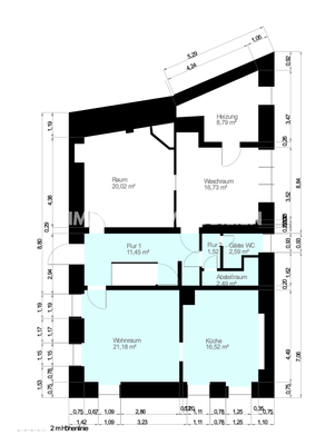
Das Haus
Kategorie
Stadthaus
Baujahr
1850
Bezug
sofort
Energie & Heizung
Warum sehe ich diese Anzeige? – Du siehst diese Anzeige basierend auf Ihrer Navigation auf unserer Website und den Suchkriterien, die du verwendet hast.
Energieausweis: für diesen Gebäudetyp nicht notwendig
Weitere Energiedaten
Energieträger
Öl
Heizungsart
Zentralheizung
Details
Objektbeschreibung
Dieses charmante, denkmalgeschützte Wohnhaus befindet sich im historischen Herzen der Altstadt von Steinau und vereint den besonderen Charakter vergangener Jahrhunderte mit vielseitigen Nutzungsmöglichkeiten.
Das genaue Baujahr ist nicht dokumentiert, wird jedoch auf den Zeitraum zwischen 1850 und 1900 geschätzt. Die...
Preisinformation
1 Stellplatz
Weitere Informationen
Provisionshinweis
3,57% inkl. MwSt
Für weitere Informationen oder zur Vereinbarung eines Besichtigungstermins stehen wir selbstverständlich gern zur Verfügung.
Maklerprovision: Alle Angaben beruhen auf uns erteilten Informationen. Die Haftung für Richtigkeit bzw. Vollständigkeit ist uns daher nicht möglich...
Anbieter der Immobilie
Immolike Immobilien
Häuser Hohle 14, 63628 Bad Soden-Salmünster

Online-ID: 2nabf5z
Referenznummer: 1006
Finde Angebote wie dieses
Hier geht es zu unserem Impressum, den Allgemeinen Geschäftsbedingungen, den Hinweisen zum Datenschutz und nutzungsbasierter Online-Werbung.