
Debeka Bausparkasse AG
Herr Nektarios Kanakidis
Kontaktiere den Anbieter schriftlich, es ist keine Telefonnummer hinterlegt.
Preise & Kosten
Provision für Käufer
3,57% inkl. MwSt.
Lage
Der Stadtteil Krefeld-Oppum zählt zu den traditionsreichen und zugleich lebendig gewachsenen Wohnlagen im Osten der Seidenstadt.
Gepflegte Wohnstraßen, moderne Wohngebäude sowie kleinere Einfamilienhaus-Quartiere bestimmen das Bild und schaffen ein angenehmes, ruhiges Umfeld.
Oppum bietet eine hohe Lebensqualität...
Die Wohnung
Wohnungslage
2. Geschoss
Bezug
nach Vereinbarung
Derzeitige Nutzung
vermietet
Wohnanlage
Energie & Heizung
Warum sehe ich diese Anzeige? – Du siehst diese Anzeige basierend auf Ihrer Navigation auf unserer Website und den Suchkriterien, die du verwendet hast.
Energieausweistyp
Verbrauchsausweis
Gebäudetyp
Wohngebäude
Gültigkeit
13.05.2019 bis 12.05.2029
Effizienzklasse
C
Endenergieverbrauch
95,00 kWh/(m²·a)
Weitere Energiedaten
Energieträger
Gas
Heizungsart
Etagenheizung
Details
Objektbeschreibung
Das im Jahr 1967 erbaute viergeschossige Mehrfamilienhaus befindet sich in zentraler Lage von Krefeld-Oppum, in direkter Bus-und-Bahn Nähe.
Das Gebäude selbst beherbergt in der Summe acht Wohneinheiten und präsentiert sich in einem insgesamt gepflegten Gesamtzustand.
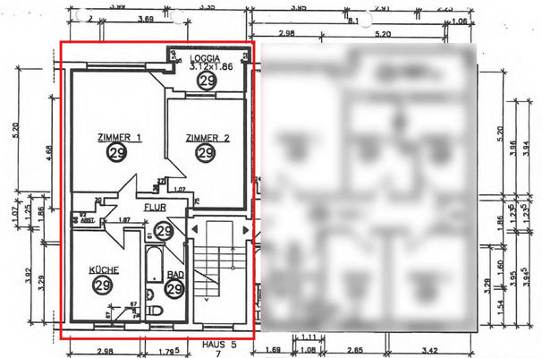
Die zum Verkauf kommende 2-Zimmer-Wohnung...
Ausstattung
- ca. 62m² Wohnfläche
- Sanierter Balkon
- Kellerraum
- Heizung 2023 erneuert
- Giebelwände des Hauses 2016 gedämmt
- langjährige und zuverlässige Mieter, die sich gut um die Wohnung kümmern
Weitere Informationen
Sonstiges
Die genannten Informationen beruhen auf den Angaben des Verkäufers. Für die Richtigkeit und Vollständigkeit der Angaben wird keine Gewähr oder Haftung übernommen.
Seit dem 25. Mai 2018 gilt in Deutschland die EU-Datenschutz-Grundverordnung (DS-GVO). Sie regelt, wie private Unternehmen und öffentliche...
Anbieter der Immobilie

Debeka Bausparkasse AG
Debeka-Platz 2, 56073 Koblenz
Herr Nektarios Kanakidis
Dein Ansprechpartner
Kontaktiere den Anbieter schriftlich, es ist keine Telefonnummer hinterlegt.
Online-ID: 2nab75r
Referenznummer: 1009369#4Fd7ty
Finde Angebote wie dieses
Hier geht es zu unserem Impressum, den Allgemeinen Geschäftsbedingungen, den Hinweisen zum Datenschutz und nutzungsbasierter Online-Werbung.