

Bauteam GmbH
Herr Roman Bürger
0 3 ···
Nr. anzeigenPreise & Kosten
Provision für Käufer
provisionsfrei
Lage
Das Objekt liegt im begehrten Stadtteil "Andershof" der Hansestadt Stralsund. Die Lage bietet eine ruhige, grüne Wohnatmosphäre mit direkter Nähe zum Strelasund und kurzen Wegen zur Innenstadt. Versorgungseinrichtungen, Schulen und Freizeitangebote sind gut erreichbar. Durch die gute Anbindung an den öffentlichen Nahverkehr...
Die Wohnung
Wohnungslage
1. Geschoss
Wohnanlage
Energie & Heizung
Warum sehe ich diese Anzeige? – Du siehst diese Anzeige basierend auf Ihrer Navigation auf unserer Website und den Suchkriterien, die du verwendet hast.
Weitere Energiedaten
Energieträger
Elektro
Heizungsart
Fußbodenheizung, Luft-/Wasser-Wärmepumpe, Zentralheizung
Details
Objektbeschreibung
+++Wohnen mit Zukunft, investieren in Sicherheit+++
In einer der angenehmsten Wohnlagen Stralsunds entsteht ein hochwertiger Neubau in Massivbauweise, der modernes Wohnen, nachhaltige Technik und langfristige Wertstabilität vereint. Das Mehrfamilienhaus mit nur 6 Eigentumswohnungen bietet ein exklusives, ruhiges Wohnumfeld...
Weitere Informationen
Eckdaten:
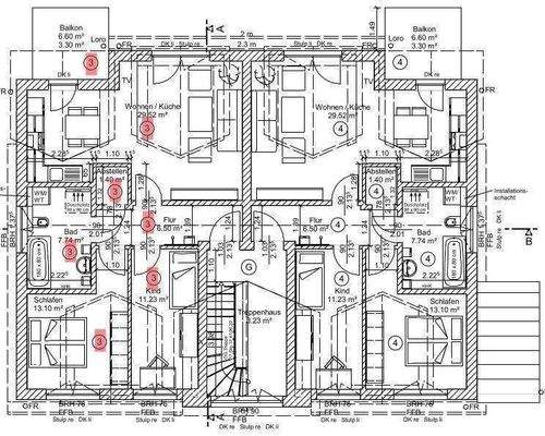
Wohnung 03/ 1.DG links:
+ 3- Raumwohnung, ca. 72,81 m² inkl. 50% der Balkonfläche, 1 PKW-Stellplatz, 1 Pflasterfläche für einen Außenabstellraum
Kaufpreis Wohnung inkl. Grundstücksanteil: 302.492,50 EUR
Kaufpreis 1 PKW- Stellplatz, Pflasterfläche für Nebengebäude als Absteller und anteilig...
Anbieter der Immobilie
Bauteam GmbH
Bauhofstraße 1 E, 18439 Stralsund

Online-ID: 2na9x5y
Referenznummer: WHG31.DGLIAD78 HST
Finde Angebote wie dieses
Hier geht es zu unserem Impressum, den Allgemeinen Geschäftsbedingungen, den Hinweisen zum Datenschutz und nutzungsbasierter Online-Werbung.