
McMakler GmbH
Ihr McMakler Team
080 ···
Nr. anzeigenPreise & Kosten
Provision für Käufer
Die Provision i.H.v. 3,57 % inkl. MwSt. ist mit Kaufvertragsbeurkundung fällig, sofern der Verkaufspreis über 83.000,00 € liegt.
Liegt der Verkaufspreis dagegen bei/unter 83. Weitere Informationen siehe Provisionshinweis.
Lage
Lage: Attraktive Vorstadtlage in Altenholz-Klausdorf bietet ruhige Atmosphäre mit Top-Anbindung
Bildung und Betreuung: Familienfreundliches Wohnen mit Kindergarten und Schule in fußläufiger Entfernung
Nahversorgung: Supermarkt, Apotheke und Bankfiliale im Umkreis von ca. 800 m zu finden
Anbindung: Bushaltestelle und...
Das Renditeobjekt
Baujahr
1977
Bezug
ab sofort
Energie & Heizung
Warum sehe ich diese Anzeige? – Du siehst diese Anzeige basierend auf Ihrer Navigation auf unserer Website und den Suchkriterien, die du verwendet hast.
Energieausweistyp
Bedarfsausweis
Gebäudetyp
Wohngebäude
Baujahr laut Energieausweis
1977
Wesentliche Energieträger
Gas
Effizienzklasse
G
Endenergiebedarf
219,09 kWh/(m²·a)
Weitere Energiedaten
Energieträger
Gas
Heizungsart
Zentralheizung
Details
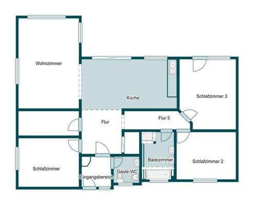
Objektbeschreibung
Objektnr: 1069667
Willkommen in Ihrem neuen Zuhause in Altenholz-Klausdorf!
Dieses charmante Einfamilienhaus aus dem Jahr 1977 liegt in einer der begehrtesten Wohngegenden nahe Kiel, in einer ruhigen Sackgassenlage, die Ihnen Privatsphäre und Ruhe garantiert. Gleichzeitig genießen Sie die Nähe zur...
Ausstattung
+ In familienfreundlicher Umgebung in Vorstadtlage von Altenholz, als Investment und zur privaten Verwendung
+ Tolle Außenbereiche: Der teils sichtgeschützte Garten auf ca. 733 m² großzügigem Grund lädt zum Verweilen ein
+ Das Objekt präsentiert sich in einem renovierungsbedürftigen Zustand
+ Vielseitig...
Weitere Informationen
Provisionshinweis
Die Provision i.H.v. 3,57 % inkl. MwSt. ist mit Kaufvertragsbeurkundung fällig, sofern der Verkaufspreis über 83.000,00 € liegt.
Liegt der Verkaufspreis dagegen bei/unter 83.000,00 €, ist die fest vereinbarte Mindestprovision i.H.v. mind. 5.950,00 € inkl. MwSt. mit Kaufvertragsbeurkundung fällig...
Anbieter der Immobilie
McMakler GmbH
Am Postbahnhof 17, 10243 Berlin
Online-ID: 2na7y5y
Referenznummer: 57f1177227
Finde Angebote wie dieses
Hier geht es zu unserem Impressum, den Allgemeinen Geschäftsbedingungen, den Hinweisen zum Datenschutz und nutzungsbasierter Online-Werbung.