
REWWO Immobilienvermittlung GbR
Herr Johann Reimer
004 ···
Nr. anzeigenPreise & Kosten
Kaution
3.354,00
Warum sehe ich diese Anzeige? – Du siehst diese Anzeige basierend auf Ihrer Navigation auf unserer Website und den Suchkriterien, die du verwendet hast.
Lage
Die Wohnung befindet sich in zentraler Lage von Burghausen. Alle Einkaufsmöglichkeiten, Ärzte und weitere Einrichtungen des täglichen Bedarfs sind in wenigen Minuten fußläufig erreichbar.
Die Wohnung
Wohnungslage
2. Geschoss
Wohnanlage
Energie & Heizung
Warum sehe ich diese Anzeige? – Du siehst diese Anzeige basierend auf Ihrer Navigation auf unserer Website und den Suchkriterien, die du verwendet hast.
Weitere Energiedaten
Heizungsart
Fußbodenheizung, Luft-/Wasser-Wärmepumpe
Details
Objektbeschreibung
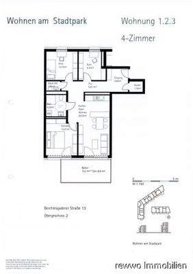
Zur Vermietung steht eine moderne 4-Zimmer-Wohnung im 2. Obergeschoss eines Neubau-Mehrfamilienhauses mit Aufzug in Burghausen-Neustadt. Die Wohnung befindet sich derzeit noch im Bau und ist ab dem 01.09.2026 verfügbar.
Über einen geräuscharmen Aufzug, der bis zum Kellergeschoss fährt, erreichen Sie bequem Ihre Wohnung...
Preisinformation
1 Tiefgaragenstellplatz, Miete: 60,00 EUR
Nettokaltmiete: 1.118,00 EUR
Weitere Informationen
Stichworte
Tiefgarage vorhanden, Nutzfläche: 5,00 m², Anzahl der Schlafzimmer: 3, Anzahl der Badezimmer: 1, Balkon-Terrassen-Fläche: 13,00 m², 5 Etagen
Anbieter der Immobilie

REWWO Immobilienvermittlung GbR
Wackerstr. 42, 84489 Burghausen
Online-ID: 2na7n5n
Referenznummer: JRWRS1.2.3
Finde Angebote wie dieses
Hier geht es zu unserem Impressum, den Allgemeinen Geschäftsbedingungen, den Hinweisen zum Datenschutz und nutzungsbasierter Online-Werbung.