
HausHirsch GmbH
Herr Adrian Spitzner
+49 ···
Nr. anzeigenPreise & Kosten
Provision für Käufer
3.57%
Die angegebene Käuferprovision (inkl. MwSt.) ist verdient und fällig mit Beurkundung des notariellen Kaufvertrages.
Lage
Die Immobilie befindet sich in einer attraktiven Lage in Heilbronn mit guter Anbindung an den öffentlichen Nahverkehr. Eine Haltestelle des ÖPNV ist in nur ca. 3 Gehminuten erreichbar und ermöglicht eine schnelle Verbindung in die umliegenden Stadtteile sowie in die Innenstadt.
Der Hauptbahnhof Heilbronn ist mit...
Das Haus
Kategorie
Einfamilienhaus
Baujahr
1936
Energie & Heizung
Warum sehe ich diese Anzeige? – Du siehst diese Anzeige basierend auf Ihrer Navigation auf unserer Website und den Suchkriterien, die du verwendet hast.
Energieausweistyp
Bedarfsausweis
Gebäudetyp
Wohngebäude
Wesentliche Energieträger
STROM
Effizienzklasse
H
Endenergiebedarf
327,00 kWh/(m²·a)
Details
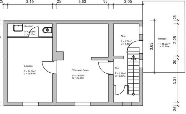
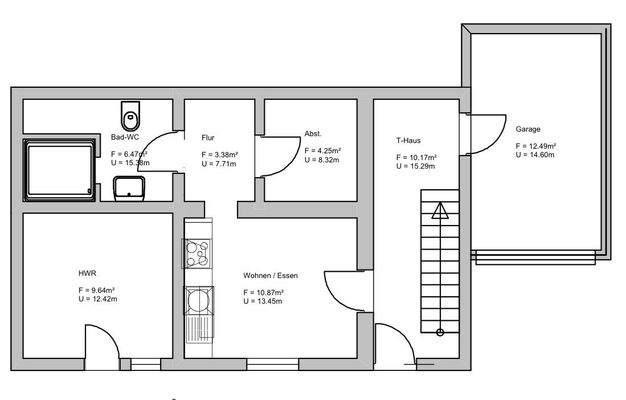
Objektbeschreibung
Dieses Einfamilienhaus in Heilbronn bietet eine solide Grundlage für alle, die ein Projekt mit Potenzial suchen. Das Haus wurde zuletzt 1993 modernisiert und präsentiert sich heute als sanierungsbedürftiges Objekt, das darauf wartet, nach eigenen Vorstellungen neu gestaltet zu werden.
Die vorhandene Raumaufteilung...
Weitere Informationen
Stichworte
Gesamtfläche: 98,00 m², Anzahl der Badezimmer: 1, Bundesland: Baden-Württemberg, 2 Etagen
Anbieter der Immobilie
Online-ID: 2na5w5z
Referenznummer: HA2532486
Finde Angebote wie dieses
Hier geht es zu unserem Impressum, den Allgemeinen Geschäftsbedingungen, den Hinweisen zum Datenschutz und nutzungsbasierter Online-Werbung.