
ohne-makler.net - Immobilien selbst vermarkten
Privat vom Eigentümer
Kontaktiere den Anbieter schriftlich, es ist keine Telefonnummer hinterlegt.
Preise & Kosten
Provision für Käufer
provisionsfrei
Lage
Das Objekt liegt in einer ruhigen Wohnlage in einem gewachsenen Moselort mit vollständiger Infrastruktur.
Erreichbarkeit: Die Stadt Trier ist in weniger als 20 Minuten erreichbar. Die geografische Lage bietet zudem eine hervorragende Anbindung für Pendler nach Luxemburg.
Nahversorgung: Grundschule, Kindergarten...
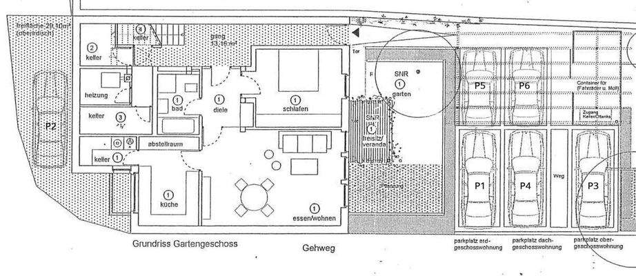
Die Wohnung
Wohnungslage
Erdgeschoss
Bezug
nach Absprache
Derzeitige Nutzung
vermietet
Wohnanlage
Energie & Heizung
Warum sehe ich diese Anzeige? – Du siehst diese Anzeige basierend auf Ihrer Navigation auf unserer Website und den Suchkriterien, die du verwendet hast.
Energieausweistyp
Bedarfsausweis
Gebäudetyp
Wohngebäude
Endenergiebedarf
79,00 kWh/(m²·a)
Weitere Energiedaten
Energieträger
Öl
Heizungsart
Fußbodenheizung
Details
Objektbeschreibung
Die im Jahr 2004 errichtete Eigentumswohnung in einem gepflegten Mehrfamilienhaus vereint eine offene, großzügige Raumgestaltung mit kompakter Effizienz. Der hervorragende Schnitt der vier Zimmer ermöglicht eine flexible Nutzung - ideal für Familien oder zur Kombination von Wohnen und Arbeiten im Homeoffice. Ein besonderes...
Ausstattung
Balkon, Keller, Vollbad, Duschbad, Gäste-WC, Fliesen
Bemerkungen:
Die technische Ausstattung der Wohnung ist auf Komfort und langfristige Nutzbarkeit ausgelegt:
Zukunftssicheres Energiekonzept
Das Objekt ist bereits für kommende energetische Anforderungen vorbereitet. Durch die vorhandene Flächenheizung...
Weitere Informationen
Sonstiges
Heizungsart: Fußbodenheizung
Energieträger: Öl
Eigennutzung & Planung: Die Wohnung ist derzeit vermietet. Für Selbstnutzer gilt eine gesetzliche Kündigungsfrist von neun Monaten. Dieser Zeitraum bietet Erwerbern eine verlässliche Planungsgrundlage für den Umzug, während die laufenden Mieteinnahmen...
Anbieter der Immobilie
ohne-makler.net - Immobilien selbst vermarkten
Humboldtstr. 25 A, 21509 Glinde
Privat vom Eigentümer
Dein Ansprechpartner
Kontaktiere den Anbieter schriftlich, es ist keine Telefonnummer hinterlegt.
Online-ID: 2na5k5u
Referenznummer: 400494
Finde Angebote wie dieses
Hier geht es zu unserem Impressum, den Allgemeinen Geschäftsbedingungen, den Hinweisen zum Datenschutz und nutzungsbasierter Online-Werbung.