

Edelmann-Immobilien-MV
Herr Lars Edelmann
038 ···
Nr. anzeigenPreise & Kosten
Provision für Käufer
provisionsfrei
Lage
Gelbensande ist eine Gemeinde im Landkreis Rostock in Mecklenburg-Vorpommern und Sitz des Amtes "Rostocker Heide".
Der ca. 1.500 Einwohner zählende Ort befindet sich an der Bundesstraße 105 ca. 10km südwestlich der Bernsteinstadt Ribnitz-Damgarten und ca. 13 km nordöstlich der Hansestadt Rostock am Rand der "Rostocker...
Das Haus
Bezug
nach Vereinbarung
Energie & Heizung
Warum sehe ich diese Anzeige? – Du siehst diese Anzeige basierend auf Ihrer Navigation auf unserer Website und den Suchkriterien, die du verwendet hast.
Energieausweis: für diesen Gebäudetyp nicht notwendig
Details
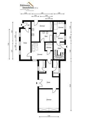
Objektbeschreibung
Das historische Bahnhofsgebäude in Gelbensande wurde um ca. 1890 in massiver Bauweise errichtet und diente ursprünglich sowohl als Bahnhofsgebäude als auch als Wohnhaus für Bahnbeamte.
Das Objekt befindet sich auf einem ca. 1.358 m² großen Grundstück und verfügt über eine Nutzfläche von insgesamt ca. 300 m² Nutzfläche...
Ausstattung
Das denkmalgeschützte Bahnhofsgebäude verfügt über einen vorhandenen Gas- und Wasseranschluss. Die aktuell vermietete Einheit wird über Stromheizplatten beheizt. Im Haupthaus sowie im Anbau sind einfach verglaste Holzfenster verbaut.
Das Gebäude ist weiterhin teilunterkellert.
Aufgrund des Denkmalschutzes sowie der Lage...
Weitere Informationen
Sonstiges
Sämtliche Sanierungs- und Renovierungsarbeiten wurden bei der Kaufpreisbildung berücksichtigt.
Für das hier angebotene, unter Denkmalschutz stehenden Bahnhofsgebäude besteht keine Pflicht zur Vorlage eines Energieausweises. Gemäß § 105 des Gebäudeenergiegesetzes (GEG).
Bitte haben Sie dafür...
Anbieter der Immobilie

Online-ID: 2na2g5m
Referenznummer: LER1.JW.1778
Finde Angebote wie dieses
Hier geht es zu unserem Impressum, den Allgemeinen Geschäftsbedingungen, den Hinweisen zum Datenschutz und nutzungsbasierter Online-Werbung.