
Castellanum
Firma Castellanum Bozen - Bolzano
003 ···
Nr. anzeigenPreise & Kosten
zzgl. Nebenkosten
Provision für Mieter
3% zzgl. MwSt.
Warum sehe ich diese Anzeige? – Du siehst diese Anzeige basierend auf Ihrer Navigation auf unserer Website und den Suchkriterien, die du verwendet hast.
Die Industriefläche
Kategorie
Produktionshalle
Baujahr
1980
Bezug
sofort
Details
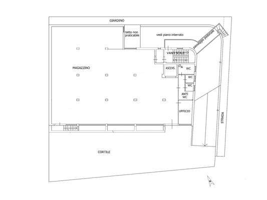
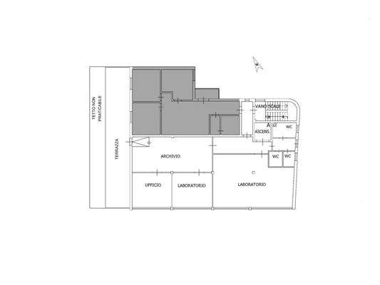
Objektbeschreibung
Castellanum bietet eine großzügige Gewerbeimmobilie mit Produktions- und Dienstleistungsnutzung zur Miete an. Die Liegenschaft befindet sich in strategischer Lage in der Industriezone Bozen Nord, nur wenige Minuten vom historischen Stadtzentrum entfernt, mit hervorragender Sichtbarkeit und optimaler Erreichbarkeit dank der...
Weitere Informationen
Stichworte
Rolladen, Nutzfläche: 1.020,00 m², Verkaufsfläche: 1.020,00 m², Anzahl der separaten WCs: 4, 3 Etagen
Anbieter der Immobilie
Castellanum
Trattengasse 7, 37042 Brixen (BZ)
Online-ID: 2n9x85p
Referenznummer: BZ13374_4
Finde Angebote wie dieses
Hier geht es zu unserem Impressum, den Allgemeinen Geschäftsbedingungen, den Hinweisen zum Datenschutz und nutzungsbasierter Online-Werbung.