

BUSCH-IMMOBILIEN
Herr Adrian Busch
038 ···
Nr. anzeigenPreise & Kosten
zzgl. Nebenkosten
Kaution
3390,66
Provision für Mieter
1,5 Kaltmieten zzgl. MwSt.
Die Höhe der Courtage richtet sich nach geltenden gesetzlichen Regelungen zur Teilung der Honorarkosten an den Makler. Weitere Informationen siehe Provisionshinweis.
Abschreibung/Anlage
Denkmalschutz-Afa
Warum sehe ich diese Anzeige? – Du siehst diese Anzeige basierend auf Ihrer Navigation auf unserer Website und den Suchkriterien, die du verwendet hast.
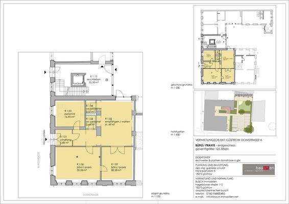
Büro-/Praxisfläche
Kategorie
Bürogebäude
Baujahr
2016
Bezug
nach Vereinbarung
Geschoss
Erdgeschoss
Energie & Heizung
Warum sehe ich diese Anzeige? – Du siehst diese Anzeige basierend auf Ihrer Navigation auf unserer Website und den Suchkriterien, die du verwendet hast.
Energieausweis: für diesen Gebäudetyp nicht notwendig
Weitere Energiedaten
Energieträger
Gas
Heizungsart
Fußbodenheizung
Details
Objektbeschreibung
Beeindruckendes Stadthaus zentral im Güstrower Stadtkern gelegen. Der gesamte Gebäudekomplex wurde 2016 umfassend saniert. Das Wohn- und Geschäftshaus beherbergt insgesamt 9 Wohneinheiten und 1 Gewerbeeinheit.
Historisches Ambiente verbunden mit modernem Komfort. Viele originale Stilelemente, sowie eine Vielzahl an...
Preisinformation
1 Stellplatz, Miete: 45,00 EUR
Nebenkosten pro qm: 2,78 EUR
Weitere Informationen
Provisionshinweis
1,5 Kaltmieten zzgl. MwSt.
Die Höhe der Courtage richtet sich nach geltenden gesetzlichen Regelungen zur Teilung der Honorarkosten an den Makler. Hiernach wird die Courtage für beide Parteien (Vermieter/Mieter) auf jeweils 1,50 Kaltmieten zzgl. Mehrwertsteuer, derzeit 19 %, basierend auf den entgültig...
Dokumente
Anbieter der Immobilie

Online-ID: 2n9tk5c
Referenznummer: 136840934#JYhITM
Finde Angebote wie dieses
Hier geht es zu unserem Impressum, den Allgemeinen Geschäftsbedingungen, den Hinweisen zum Datenschutz und nutzungsbasierter Online-Werbung.