

DFI-Immobilien UG
Herr Jürgen Lehner
073 ···
Nr. anzeigenPreise & Kosten
Provision für Käufer
4,76
Lage
Das Einfamilienhaus befindet sich in einem ruhigen Wohnviertel in Memmingen, einer charmanten Stadt in Schwaben im Süden Deutschlands. Der Stadtteil zeichnet sich durch seine gepflegten Gärten, breiten Straßen und familienfreundlichen Atmosphäre aus. In unmittelbarer Nähe befinden sich Schulen, Supermärkte und kleine...
Das Haus
Kategorie
Einfamilienhaus
Bezug
sofort
Energie & Heizung
Warum sehe ich diese Anzeige? – Du siehst diese Anzeige basierend auf Ihrer Navigation auf unserer Website und den Suchkriterien, die du verwendet hast.
Weitere Energiedaten
Energieträger
Öl
Heizungsart
Zentralheizung
Details
Objektbeschreibung
Dieses geräumige Einfamilienhaus aus dem Jahr 1963 durch seine optimale Lage zu dem neuen Klinikum Memmingen Luftlinie ca. 1 km.
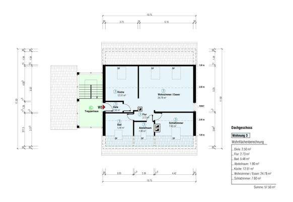
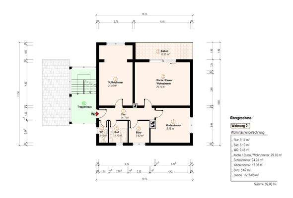
Die massive Bestandsimmobilie verfügt über sehr gute Vorraussetzungen zum Ausbau eines hochwertigen Renditeobjektes mit 3 Wohneinheiten mit insgesamt ca. 272 m² WFL.
Ein großer Garten...
Ausstattung
Die Immobilie verfügt über ein Badezimmer mit einer Badewanne und einem Fenster, was für ausreichend Tageslicht sorgt. Zudem ist eine Einbauküche bereits vorhanden, was den zukünftigen Bewohnern Zeit und Aufwand bei der Einrichtung erspart. Rollläden an den Fenstern bieten sowohl einen Sicht- als auch einen Sonnenschutz und...
Weitere Informationen
Sonstiges
hre Anfrage wird in der Regel innerhalb von 48 Stunden bearbeitet. Bitte prüfen Sie auch gegebenenfalls Ihren Spamordner im E-Mail Postfach. Sollten wir Ihr Interesse geweckt haben und Sie haben Fragen oder möchten einen Besichtigungstermin vereinbaren, erreichen Sie uns unter den folgenden...
Anbieter der Immobilie
DFI-Immobilien UG
Beckenkreuz 9/3, 89471 Laupheim

Online-ID: 2n9t75w
Referenznummer: 8470
Finde Angebote wie dieses
Hier geht es zu unserem Impressum, den Allgemeinen Geschäftsbedingungen, den Hinweisen zum Datenschutz und nutzungsbasierter Online-Werbung.