
Haskamp Immobilien GmbH
Carena Knispel
Kontaktiere den Anbieter schriftlich, es ist keine Telefonnummer hinterlegt.
Preise & Kosten
Kaution
1.400,00
Provision für Mieter
2,38 %
inkl. 19% Mwst.
Warum sehe ich diese Anzeige? – Du siehst diese Anzeige basierend auf Ihrer Navigation auf unserer Website und den Suchkriterien, die du verwendet hast.
Lage
Die Praxis befindet sich in einer zentralen Lage in Lohne.
Büro-/Praxisfläche
Kategorie
Praxis
Bezug
sofort
Geschoss
2. Geschoss
Energie & Heizung
Warum sehe ich diese Anzeige? – Du siehst diese Anzeige basierend auf Ihrer Navigation auf unserer Website und den Suchkriterien, die du verwendet hast.
Wärme
Energieausweistyp
Verbrauchsausweis
Gebäudetyp
Nicht-Wohngebäude
Endenergieverbrauch (Wärme)
106,50 kWh/(m²·a)
Details
Objektbeschreibung
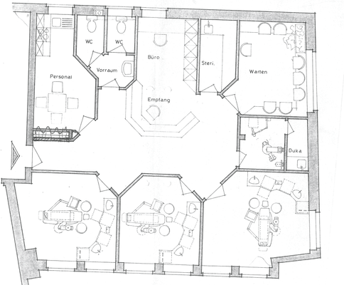
Empfangsraum/Flur, 4 Büro- bzw. Behandlungsräume, Sozialraum/Küche, WC-Anlagen, Abstellraum/Archiv, Balkon
Nach Rücksprache mit dem Eigentümer können Umbaumaßnahmen sowie Renovierungs arbeiten übernommen werden. Innenliegende Wände können zum Teil entfernet werden bzw. neue Trennwände können eingebaut werden.
Bilder...
Ausstattung
Das Gebäude verfügt über einen Aufzug, der den Zugang zu den Praxisräumen erleichtert. Die Heizung erfolgt über eine Gasheizung, die für eine komfortable Raumtemperatur sorgt. Die Räumlichkeiten sind in einem gepflegten Zustand.
Weitere Informationen
Sonstiges
Vielen Dank für Ihr Interesse. Wir bitten Sie, Ihr Anliegen ausschließlich online einzureichen und von telefonischen Anfragen abzusehen. Aufgrund der Vielzahl an Anfragen ist es uns leider nicht möglich, allen Interessenten einen Besichtigungstermin anzubieten. Bitte achten Sie daher darauf, Ihr Profil möglichst...
Anbieter der Immobilie
Haskamp Immobilien GmbH
Rixheimer Platz 6-8, 49393 Lohne
Carena Knispel
Dein Ansprechpartner
Kontaktiere den Anbieter schriftlich, es ist keine Telefonnummer hinterlegt.
Online-ID: 2n9t35x
Referenznummer: 184683
Finde Angebote wie dieses
Hier geht es zu unserem Impressum, den Allgemeinen Geschäftsbedingungen, den Hinweisen zum Datenschutz und nutzungsbasierter Online-Werbung.