

DAHLER Augsburg
Herr Jürgen Koppold
082 ···
Nr. anzeigenPreise & Kosten
Provision für Käufer
3,57 Prozent inkl. der gesetzl. MwSt., bezogen auf den Kaufpreis
Lage
Diese attraktive Erdgeschosswohnung befindet sich in einem lebendigen Stadtteil von Augsburg Oberhausen und bietet gleichermaßen eine ideale Lage für Kapitalanleger, Berufstätige und Studierende. Eingebettet in eine charmante Nachbarschaft, ist das Zentrum von Augsburg nur etwa 2 km entfernt.
Die öffentlichen...
Die Wohnung
Wohnungslage
Erdgeschoss
Derzeitige Nutzung
vermietet
Wohnanlage
Energie & Heizung
Warum sehe ich diese Anzeige? – Du siehst diese Anzeige basierend auf Ihrer Navigation auf unserer Website und den Suchkriterien, die du verwendet hast.
Energieausweistyp
Verbrauchsausweis
Gebäudetyp
Wohngebäude
Baujahr laut Energieausweis
1910
Wesentliche Energieträger
GAS
Gültigkeit
bis 25.01.2028
Effizienzklasse
E
Endenergieverbrauch
138,20 kWh/(m²·a)
Weitere Energiedaten
Energieträger
Gas
Heizungsart
Zentralheizung
Details
Objektbeschreibung
Zum Verkauf steht eine modern ausgestattete Erdgeschosswohnung mit ca. 35,56 m² Wohnfläche in Augsburg. Die Wohnung befindet sich in einem sehr gepflegten Mehrfamilienhaus mit 9 Wohneinheiten. Das Gebäude stammt aus dem Jahr 1910 und wurde 2017 kernsaniert. Die Immobilie besticht durch zwei helle Zimmer, darunter ein...
Ausstattung
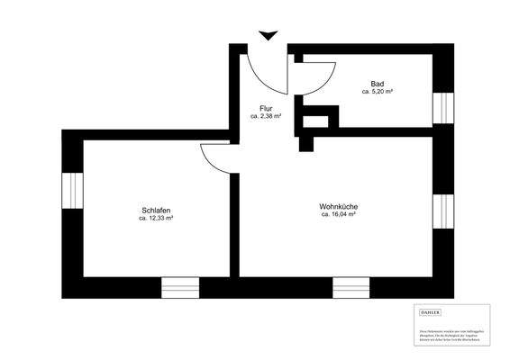
* Wohnfläche ca. 35,56 m² aufgeteilt auf 2 Zimmer, Flur und Bad
* Geräumiges Wohn-/Esszimmer mit offener Küche
* Helles Schlafzimmer
* Modernes Tageslicht-Bad mit Badewanne, WC, Waschbecken und Waschmaschinenanschluss
* Voll ausgestattete Einbauküche
* Echtholz-Dielenboden und Fliesen im Bad
* Ein...
Weitere Informationen
Sonstiges
Grunderwerbsteuer, Notar- und Grundbuchkosten sind vom Käufer zutragen. Die Provision in Höhe von 3,57 Prozent inkl. der gesetzl. MwSt., bezogen auf den Kaufpreis ist bei Abschluss des Kaufvertrages verdient und fällig und vom Käufer an die DAHLER Augsburg, Inhaber: Homes Bayern GmbH zu zahlen. DAHLER Augsburg...
Anbieter der Immobilie
DAHLER Augsburg
Karlstraße 2, 86150 Augsburg

Online-ID: 2n9se59
Referenznummer: DC-AUG3200
Finde Angebote wie dieses
Hier geht es zu unserem Impressum, den Allgemeinen Geschäftsbedingungen, den Hinweisen zum Datenschutz und nutzungsbasierter Online-Werbung.