
Willuhn Immobilien e.K. Inh. Sabine Willuhn
Sabine Willuhn
016 ···
Nr. anzeigenPreise & Kosten
Provision für Mieter
7,14% inkl. Mehrwertsteuer
Die Provision in Höhe von 7,14 % inkl. MwSt. vom Kaufpreis ist vom Käufer zu tragen.
Warum sehe ich diese Anzeige? – Du siehst diese Anzeige basierend auf Ihrer Navigation auf unserer Website und den Suchkriterien, die du verwendet hast.
Lage
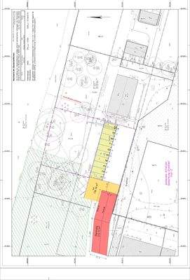
Die Immobilie wird in Altefähr, Ortsteil Grahlhof, auf der Insel Rügen erbaut. Die Lage ist ländlich und gewerblich geprägt und bietet eine ruhige Umgebung mit guter Erreichbarkeit. Altefähr verfügt über eine direkte Fährverbindung nach Stralsund, wodurch eine schnelle Anbindung an das Festland gewährleistet ist. Die Insel...
Die Industriefläche
Kategorie
Lagerhalle
Details
Objektbeschreibung
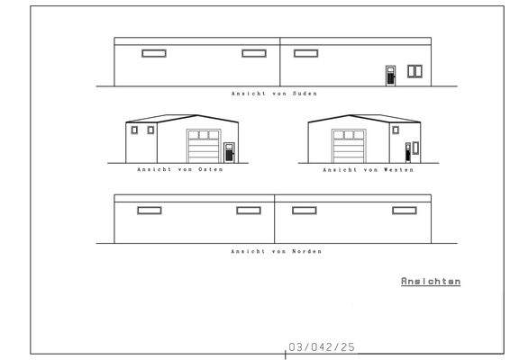
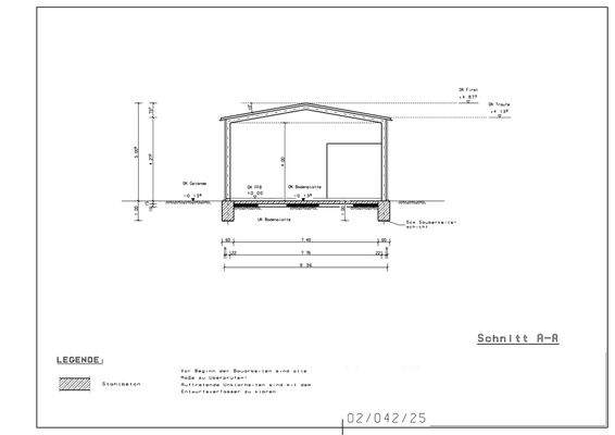
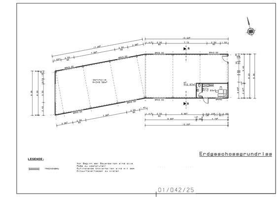
Bei dieser Immobilie handelt es sich um eine funktional geplante, eingeschossige Gewerbe- bzw. Werkhalle, die im Rahmen eines Neubauvorhabens errichtet wird und sich durch eine klare Grundrissstruktur mit integrierten Nebenräumen auszeichnet.
Die Hallenfläche wird ca. 272,7 m² umfassen, überwiegend offen gestaltet...
Ausstattung
*Ca. 272,7 m² Hallenfläche
*Hoffläche ca. 136 m²
*Insgesamt ca. 1000 m² Grundstück
*Büro mit WC
*Ebenerdiges Hallentor
*Ca. 4,00 m Hallenhöhe
*Massive Bauweise
*Direkte Zufahrt
*Flexible Nutzung
Weitere Informationen
Sonstiges
Hinweis zur Richtigkeit und Vollständigkeit der Angaben:
Der Makler weist darauf hin, dass die von ihm weitergegebenen Objektinformationen vom Verkäufer bzw. von einem vom Verkäufer beauftragten Dritten stammen und von ihm, dem Makler, auf ihre Richtigkeit nicht überprüft worden sind. Es ist Sache des...
Anbieter der Immobilie
Willuhn Immobilien e.K. Inh. Sabine Willuhn
Scherlstraße 12, 04103 Leipzig
Online-ID: 2n9rp5r
Referenznummer: 502499
Finde Angebote wie dieses
Hier geht es zu unserem Impressum, den Allgemeinen Geschäftsbedingungen, den Hinweisen zum Datenschutz und nutzungsbasierter Online-Werbung.