
KRANENKAMP IMMOBILIEN GmbH & Co. KG
Frau Julia Sandstede
004 ···
Nr. anzeigenPreise & Kosten
Provision für Käufer
3,57 % inkl. MwSt. vom Kaufpreis
Lage
Das angebotene Objekt befindet sich in begehrter Lage von Edewecht.
Die Gemeinde Edewecht ist die südlichste Gemeinde des Landkreises Ammerland - im Nordwesten Niedersachsens gelegen - und verfügt aktuell über mehr als 23.000 Einwohner.
In der näheren Umgebung sind Haus- und Fachärzte, Apotheken oder Banken...
Das Haus
Kategorie
Einfamilienhaus
Baujahr
1958
Bezug
Nach Vereinbarung
Energie & Heizung
Warum sehe ich diese Anzeige? – Du siehst diese Anzeige basierend auf Ihrer Navigation auf unserer Website und den Suchkriterien, die du verwendet hast.
Energieausweistyp
Bedarfsausweis
Gebäudetyp
Wohngebäude
Baujahr laut Energieausweis
1958
Wesentliche Energieträger
GAS
Gültigkeit
bis 21.12.2035
Effizienzklasse
H
Endenergiebedarf
312,20 kWh/(m²·a)
Details
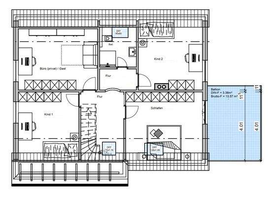
Objektbeschreibung
In begehrter Wohnlage von Edewecht befindet sich dieses gepflegte Einfamilienhaus (nicht freistehend) aus dem Baujahr 1958. Die Immobilie überzeugt durch eine durchdachte Raumaufteilung, viel Platz für die ganze Familie und ein solides Fundament für individuelle Modernisierungswünsche.
Das Haus verfügt über eine...
Ausstattung
Ausstattungsmerkmale dieses charmanten Wohnhauses sind u.a.
- zentrale und ruhige Lage
- durchdachter Grundriss
- Einbauküche
- Bad mit bodentiefer Dusche im EG
- großer Garten mit Blick ins Grüne
- überdachte Terrasse
- Balkon
- Teilunterkellert
- und, und...
Weitere Informationen
Sonstiges
Wichtige Hinweise:
Alle Angaben zum Objekt beruhen auf den Angaben des Eigentümers. Für die Vollständigkeit und Richtigkeit dieser Daten übernehmen wir daher grundsätzlich keine Gewähr. Irrtümer sowie Zwischenvermietung bleiben vorbehalten.
Wir bitten um Verständnis dafür, dass wir Informationen zu...
Anbieter der Immobilie
KRANENKAMP IMMOBILIEN GmbH & Co. KG
Hauptstraße 62b, 26188 Edewecht
Online-ID: 2n9r658
Referenznummer: 008- 6664
Finde Angebote wie dieses
Hier geht es zu unserem Impressum, den Allgemeinen Geschäftsbedingungen, den Hinweisen zum Datenschutz und nutzungsbasierter Online-Werbung.