

Bauteam GmbH
Herr Roman Bürger
0 3 ···
Nr. anzeigenPreise & Kosten
Provision für Käufer
provisionsfrei
Lage
Nordosten von Mecklenburg Vorpommern, ca.15 km von Stralsund entfernt (gute Verkehrsanbindung). Wendisch Langendorf ist ein Ortsteil der Gemeinde Groß Mohrdorf, Einkaufsmöglichkeiten, Arzt, Kita, Schule etc. sind in wenigen Minuten mit dem Auto erreichbar. Nahe des Europäischen Küstenradwanderweges, südwestlich der Insel...
Das Renditeobjekt
Kategorie
Mehrfamilienhaus
Energie & Heizung
Warum sehe ich diese Anzeige? – Du siehst diese Anzeige basierend auf Ihrer Navigation auf unserer Website und den Suchkriterien, die du verwendet hast.
Weitere Energiedaten
Energieträger
Elektro
Heizungsart
Fußbodenheizung, Luft-/Wasser-Wärmepumpe
Details
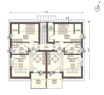
Objektbeschreibung
+++Kapitalanlage mit Meerblick in Wendisch Langendorf+++
Unser Angebot an Investoren/ Kapitalanleger umfasst den Neubau eines kleinen und stilvollen Mehrfamilienhauses mit jeweils 4 Mietwohnungen. Die modern und hochwertig ausgestatteten 2 Raumwohnungen haben eine Wohnfläche zwischen 52 und 63 m². Das Wohnhaus wird...
Weitere Informationen
Besichtigungstermine:
Hat dieses exklusive Angebot Ihr Interesse geweckt und wünschen Sie ein
persönliches Beratungsgespräch, dann lassen Sie es uns einfach
wissen! Wir sind gerne für Sie da!
Sie erreichen uns Montag-Freitag von 8.00-16.00 Uhr.
Sonstiges:
Das Mehrfamilienhaus ist bereits...
Anbieter der Immobilie
Bauteam GmbH
Bauhofstraße 1 E, 18439 Stralsund

Online-ID: 2n9qw5y
Referenznummer: MHWLBW4C
Finde Angebote wie dieses
Hier geht es zu unserem Impressum, den Allgemeinen Geschäftsbedingungen, den Hinweisen zum Datenschutz und nutzungsbasierter Online-Werbung.