
PL-Living Immobilien und Handels GmbH
Frau Paloma Luthe
004 ···
Nr. anzeigenPreise & Kosten
Provision für Käufer
3,57% inkl. gesetzl. MwSt.
Lage
Emden: Eine Perle an der Nordseeküste
Willkommen in Emden, einer charmanten Stadt, die Tradition und Moderne auf harmonische Weise vereint. Gelegen an der Nordseeküste, bietet Emden nicht nur eine idyllische Landschaft, sondern auch ein reichhaltiges kulturelles Erbe und eine hervorragende...
Die Wohnung
Wohnungslage
Erdgeschoss
Wohnanlage
Energie & Heizung
Warum sehe ich diese Anzeige? – Du siehst diese Anzeige basierend auf Ihrer Navigation auf unserer Website und den Suchkriterien, die du verwendet hast.
Energieausweis: für diesen Gebäudetyp nicht notwendig
Weitere Energiedaten
Heizungsart
Fußbodenheizung, Luft-/Wasser-Wärmepumpe
Details
Objektbeschreibung
Top Kapitalanlage in Bestlage!
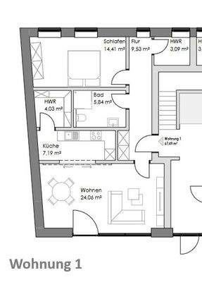
Whg. 1 im EG,69,00 m², 2 ZKB Fertigstellung April 2026. Erzielbare Kaltmiete 15 € den qm zzgl. Stellplatzmiete. Die Immobilie wird vermietet übergeben, Sie können die Verwaltung auswählen und sofort Steuern sparen. Bis zu 37,2 % Abschreibungen in vier Jahren und 53,75 % in zehn Jahren...
Ausstattung
Diese Wohnung zeichnet sich durch folgende Ausstattungsmerkmale aus:
- KfW 40 QNG- Zertifikat
- KfW Mittel von 150.000 € mit einem effektivem Zins von 1,66 % p.a. können übernommen werden
- Übergabe schlüsselfertig und Zahlung nach Fertigstellung im 04.2026
- PV-Anlage
- Luft-Wasser-Wärmepumpe
- Beheizung...
Preisinformation
1 Stellplatz
Weitere Informationen
Sonstiges
Durch den KfW 40 und QNG Standard profitieren Sie von den aktuellen KfW Kreditkonditionen, von der steuerlichen Abschreibung (AfA) und einer zusätzlichen Sonderabschreibung. Sollten Sie Ihre Steuerlast optimieren wollen, ergibt sich in den ersten vier Jahren jedes Jahr eine kombinierte Abschreibung aus der...
Anbieter der Immobilie
PL-Living Immobilien und Handels GmbH
Mosleshöhe 16, 26188 Friedrichsfehn
Online-ID: 2n9pu5t
Referenznummer: 1024_1
Finde Angebote wie dieses
Hier geht es zu unserem Impressum, den Allgemeinen Geschäftsbedingungen, den Hinweisen zum Datenschutz und nutzungsbasierter Online-Werbung.