

Frank Immobilien
Herr/Frau Martin Frank
075 ···
Nr. anzeigenPreise & Kosten
Provision für Käufer
3,57 %
In Summe wird eine Courtage inkl. MwSt. von 3,57 % fällig, sofern ein notarieller Kaufvertrag zustande kommt. Wir haben einen provisionspflichtigen Maklervertrag mit dem Verkäufer in gleicher Höhe abgeschlossen.
Lage
Das Mehrfamilienhaus befindet sich "Am Schweizersbild" in einem Neubaugebiet in Pfullendorf. In unmittelbarer Nähe befindet sich ein städtischer Kindergarten.
Die Wohnung
Wohnungslage
1. Geschoss
Derzeitige Nutzung
vermietet
Wohnanlage
Energie & Heizung
Warum sehe ich diese Anzeige? – Du siehst diese Anzeige basierend auf Ihrer Navigation auf unserer Website und den Suchkriterien, die du verwendet hast.
Energieausweistyp
Verbrauchsausweis
Gebäudetyp
Wohngebäude
Wesentliche Energieträger
Erdgas leicht
Gültigkeit
27.09.2018 bis 27.09.2028
Effizienzklasse
C
Details
Objektbeschreibung
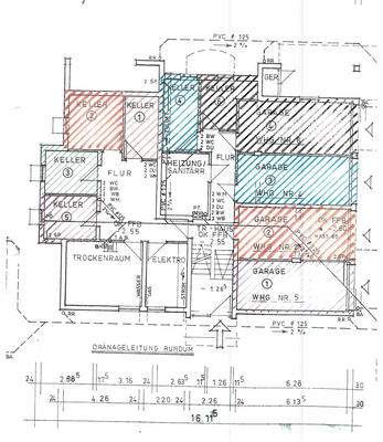
Die hier angebotene Eigentumswohnung befindet sich in einem im Jahr 1997 errichteten Mehrfamilienhaus mit insgesamt sechs Wohneinheiten in ruhiger Wohnlage von Pfullendorf. Das Wohnumfeld ist geprägt von einer gewachsenen Wohnstruktur und zeichnet sich durch seine angenehme Nachbarschaft sowie eine gute Anbindung an die...
Ausstattung
* Baujahr 1997
* Mehrfamilienhaus mit insgesamt 6 Wohneinheiten
* Wohnung Nr. 4 im Obergeschoss
* Wohnfläche ca. 102,93 m²
* Miteigentumsanteil (MEA) 20,60 / 100stel
* Ruhige Wohnlage in Pfullendorf, Richtung Ostrach
Raumaufteilung:
* Wohn- und Essbereich
* Separate Küche (Einbauküche im Eigentum...
Preisinformation
2 Garagenstellplätze
Weitere Informationen
Sonstiges
Alle Objektangaben beruhen auf Mitteilungen der Eigentümer. Eine Haftung für deren Richtigkeit wird nicht übernommen. Bauunterlagen mit Genehmigungen, Pläne und Grundrisse vom Objekt liegen vor. Besichtigungen und Verhandlungen erfolgen ausschließlich über Frank Immobilien. Das Angebot ist freibleibend...
Anbieter der Immobilie
Frank Immobilien
Hauptstraße 28, 88356 Ostrach

Online-ID: 2n9p85e
Referenznummer: MF1123V
Finde Angebote wie dieses
Hier geht es zu unserem Impressum, den Allgemeinen Geschäftsbedingungen, den Hinweisen zum Datenschutz und nutzungsbasierter Online-Werbung.