
Riverside Real Estate GmbH
Herr Artur Vidmer
004 ···
Nr. anzeigenPreise & Kosten
Provision für Käufer
3,57% inkl. 19% MwSt.
Lage
Die Immobilie befindet sich in einer ruhigen und familienfreundlichen Wohnlage, die durch viel Natur, ein entspanntes Umfeld und ein gewachsenes nachbarschaftliches Miteinander geprägt ist.
Die umliegende Landschaft mit Wiesen, Feldern und kleineren Waldabschnitten schafft ein harmonisches Wohngefühl und bietet eine...
Das Haus
Kategorie
Einfamilienhaus
Baujahr
1953
Energie & Heizung
Warum sehe ich diese Anzeige? – Du siehst diese Anzeige basierend auf Ihrer Navigation auf unserer Website und den Suchkriterien, die du verwendet hast.
Energieausweistyp
Bedarfsausweis
Gebäudetyp
Wohngebäude
Baujahr laut Energieausweis
1953
Wesentliche Energieträger
OEL
Gültigkeit
bis 24.09.2026
Effizienzklasse
F
Endenergiebedarf
182,70 kWh/(m²·a)
Weitere Energiedaten
Haustyp
Massivhaus
Heizungsart
offener Kamin
Details
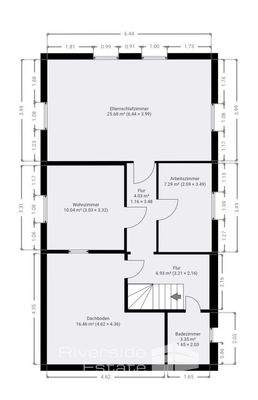
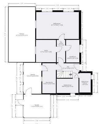
Objektbeschreibung
Dieses Einfamilienhaus aus dem Baujahr circa 1953 präsentiert sich als solide, jedoch deutlich renovierungsbedürftige Immobilie mit vielseitigem Entwicklungspotenzial. Die Wohnfläche von ca. 128,60m² verteilt sich auf insgesamt fünf Zimmer, wodurch verschiedene Nutzungsmöglichkeiten bestehen, auch wenn der aktuelle Zustand...
Ausstattung
+ ca. 128,60m² Wohnfläche
+ ca. 38,91m² Nutzfläche
+ ca. 2249m² Grundstück
+ vermietet
+ Baujahr ca. 1953
+ 5 Zimmer
+ 4 Schlafzimmer
+ 2 Badezimmer
+ Garage
+ Teilungsvorschlag liegt vor
+ relevante Sanierungsmaßnahmen:
- Elektroinstallation erneuert...
Weitere Informationen
Sonstiges
Wir bieten Immobilien aller Assetklassen zum Verkauf an, mit Standorten in Hameln-Pyrmont, Hannover, Bremen und Umgebung.
Wenn Sie mehr über uns erfahren möchten, besuchen Sie gerne unsere Homepage unter WWW.RIVERSIDE-ESTATE.DE. Dort finden Sie ausführliche Informationen über unser Unternehmen, unsere...
Anbieter der Immobilie
Riverside Real Estate GmbH
Erichstr. 16, 31785 Hameln
Online-ID: 2n9p25n
Referenznummer: 2026-570
Finde Angebote wie dieses
Hier geht es zu unserem Impressum, den Allgemeinen Geschäftsbedingungen, den Hinweisen zum Datenschutz und nutzungsbasierter Online-Werbung.