
SüdWERT Wohnungsprivatisierungs GmbH
Herr Peter Königstein
004 ···
Nr. anzeigenPreise & Kosten
Provision für Käufer
provisionsfrei
Lage
Das Wohnquartier Dr. Martin-Luther-Straße 1-3 / Gustav-Adolf-Straße 2-12 / Merianstraße 13-15 und Philipp-Melanchton-Straße 1-11 befindet sich in einem beliebten Wohngebiet einfacher bis mittlerer Wohnlage seitlich der Regensburger Straße (Bundesstraße B 85) und nach Norden begrenzt von der Raigeringer Straße / Krumbacher...
Die Wohnung
Wohnungslage
2. Geschoss
Bezug
sofort
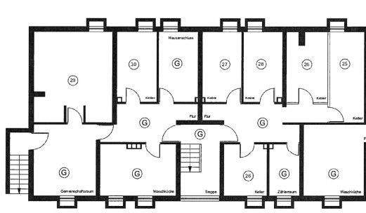
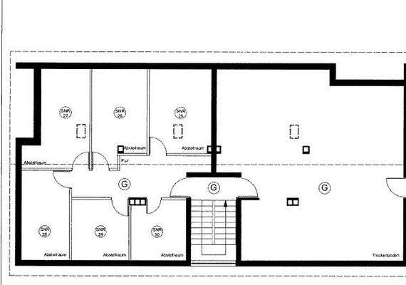
Wohnanlage
Energie & Heizung
Warum sehe ich diese Anzeige? – Du siehst diese Anzeige basierend auf Ihrer Navigation auf unserer Website und den Suchkriterien, die du verwendet hast.
Energieausweistyp
Verbrauchsausweis
Gebäudetyp
Wohngebäude
Baujahr laut Energieausweis
2004
Wesentliche Energieträger
GAS
Gültigkeit
bis 17.12.2029
Effizienzklasse
D
Endenergieverbrauch
126,00 kWh/(m²·a)
Weitere Energiedaten
Energieträger
Gas
Heizungsart
Zentralheizung
Details
Objektbeschreibung
Sie wollen endlich in den eigenen 4-Wänden wohnen ?
Benötigen Sie 4-Zimmer, haben aber nur ein überschaubares Budget ?
Dafür aber handwerkliches Geschick und gute Freunde, die helfen ?
Dann sind Wohnungen aus einem Privatisierungsbeständen genau das Richtige für Sie !
Einfach gut und günstig...
Ausstattung
Das MFH Gustav-Adolf-Straße 2-6 wurde in den Jahren 1958-1962 als Bestandteil eines Gebäudeensembles mit insgesamt sieben Gebäuden auf einem weitläufigen Grundstück mit altem Baubestand errichtet.
Es gehört nun gemeinsam mit den Wohnungen im Haus Merianstraße 13-15 zu einer WEG mit insgesamt 30 Wohnungen in fünf...
Weitere Informationen
Sonstiges
Das Angebot erfolgt im Auftrag der SüdWERT Wohnungspriviatisierungsgesellschaft mbH und ist für den Erwerber provisionsfrei.
Die Eigentümergesellschaft ist ein Unternehmen der Bietigheimer Wohnbau GmbH, also ein kommunales Wohnungsunternehmen und somit ein solider Vertragspartner für alle...
Anbieter der Immobilie
Online-ID: 2n9nu5e
Referenznummer: 90153_042
Finde Angebote wie dieses
Hier geht es zu unserem Impressum, den Allgemeinen Geschäftsbedingungen, den Hinweisen zum Datenschutz und nutzungsbasierter Online-Werbung.