

Grundstücks- und Immobilienservice
Herr Frank Rostowski
035 ···
Nr. anzeigenPreise & Kosten
Kaution
631,40
Warum sehe ich diese Anzeige? – Du siehst diese Anzeige basierend auf Ihrer Navigation auf unserer Website und den Suchkriterien, die du verwendet hast.
Lage
Gymnasium in Hoyerswerda In der Nähe befindlich: Grundschule, Realschule, Hauptschule, Gymnasium, Kindertagesstätte, Nahverkehrsanbindung, Einkaufsmöglichkeit
In der charmanten Kleinstadt Lohsa, die Teil der Oberlausitz ist und eine reiche Geschichte sowie Kultur zu bieten hat, befindet sich diese attraktive...
Die Wohnung
Wohnungslage
1. Geschoss
Bezug
sofort
Wohnanlage
Energie & Heizung
Warum sehe ich diese Anzeige? – Du siehst diese Anzeige basierend auf Ihrer Navigation auf unserer Website und den Suchkriterien, die du verwendet hast.
Energieausweistyp
Verbrauchsausweis
Gebäudetyp
Wohngebäude
Baujahr laut Energieausweis
1955
Wesentliche Energieträger
Gas
Gültigkeit
01.02.2018 bis 31.01.2028
Effizienzklasse
D
Endenergieverbrauch
128,00 kWh/(m²·a) - Warmwasser enthalten
Weitere Energiedaten
Energieträger
Gas
Heizungsart
Zentralheizung
Details
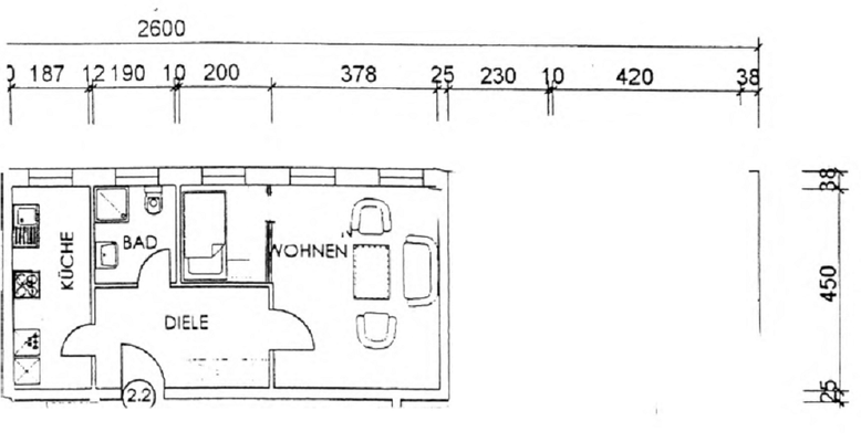
Objektbeschreibung
Bezugsfertig, Raufasertapete weiß gestrichen, Fußboden PVC-Belag, Dusche,
In der charmanten Gemeinde Lohsa befindet sich diese moderne Etagenwohnung, die ideal für junge Menschen ist, die ein gemütliches Zuhause suchen. Mit einer Wohnfläche von 45,1m² bietet sie genug Platz, um sich wohlzufühlen. Die Wohnung besteht...
Ausstattung
Wohnen in innerörtlicher Lage!
Preisinformation
Nettokaltmiete: 315,70 EUR
Weitere Informationen
Sonstiges
BODENBELAG:
PVC
BAD:
Bad mit Dusche, Innenliegendes Bad (kein Fenster), Boden: Fliesen/Stein
KÜCHE:
Boden: PVC, Küche mit Fenster
WASCHEN:
Trocknen im Hof, Anschluss im Bad
WEITERES:
Zentralheizung (Gas), Dachgeschoss, Abstell: Keller oder Bodenabteil
Es wird keine Haftung für die...
Anbieter der Immobilie

Online-ID: 2n9lg5u
Referenznummer: 2023-0210
Finde Angebote wie dieses
Hier geht es zu unserem Impressum, den Allgemeinen Geschäftsbedingungen, den Hinweisen zum Datenschutz und nutzungsbasierter Online-Werbung.