
Hinte Immobilien
Frau Natalie Hinte
+49 ···
Nr. anzeigenPreise & Kosten
Kaution
3000
Warum sehe ich diese Anzeige? – Du siehst diese Anzeige basierend auf Ihrer Navigation auf unserer Website und den Suchkriterien, die du verwendet hast.
Lage
Rysum liegt lediglich 10 Autominuten entfernt von Emden.
Nur 1.400 Meter vom Strand entfernt, lädt die Umgebung zu Spaziergängen, Radtouren oder Bootsfahrten ein. Einkaufsmöglichkeiten und Restaurants befinden sich in direkter Nähe.
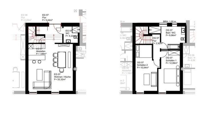
Die Wohnung
Kategorie
Maisonette
Wohnungslage
1. Geschoss
Bezug
01.05.2026
Wohnanlage
Energie & Heizung
Warum sehe ich diese Anzeige? – Du siehst diese Anzeige basierend auf Ihrer Navigation auf unserer Website und den Suchkriterien, die du verwendet hast.
Energieausweis: für diesen Gebäudetyp nicht notwendig
Weitere Energiedaten
Energieträger
Erdwärme
Heizungsart
Fußbodenheizung, Luft-/Wasser-Wärmepumpe, Zentralheizung
Details
Objektbeschreibung
Wohnen, wo andere Urlaub machen!
Der denkmalgeschützte Gulfhof van Senden im historischen Warfendorf Rysum vereint ostfriesischen Charme mit modernem Wohnkomfort.
Diese stilvolle Maisonette-Wohnung ist die größte der 15 Wohnungen im ehemaligen Scheunentrakt des Gulfhofes.
Sie ist ca. 91 qm groß und bietet mit...
Weitere Informationen
Baudenkmäler sind laut § 79 Abs. 4 GEG (Gebäudeenergiegesetz) von der Pflicht zur Erstellung und Vorlage eines Energieausweises bei Verkauf oder Vermietung befreit. Die Regelungen zu Vorlage- und Aushangpflichten (§ 80 Abs. 3 bis 7 GEG) finden keine Anwendung. Aus diesem Grund liegt kein Energieausweis vor.
Begrenzte...
Anbieter der Immobilie
Hinte Immobilien
Rastenburger Str. 1, 28779 Bremen
Online-ID: 2n9lb5p
Finde Angebote wie dieses
Hier geht es zu unserem Impressum, den Allgemeinen Geschäftsbedingungen, den Hinweisen zum Datenschutz und nutzungsbasierter Online-Werbung.