
Immobilien Bart-Vermittlung und Finanzierung
004 ···
Nr. anzeigenPreise & Kosten
Provision für Käufer
3,57 % inkl. MwSt.
Lage
Kirf-Meurich ist eine Ortsgemeinde im Landkreis Trier-Saarburg in Rheinland-Pfalz. Sie gehört der Verbandsgemeinde Saarburg an. Kirf liegt in direkter Grenznähe zu Luxemburg. Der Grenzübergang L-Remich sowie der Autobahnanschluss A13 Richtung Luxemburg/A8 Richtung Saarbrücken sind etwa 15 Minuten entfernt. Bushaltestellen für...
Das Haus
Kategorie
Einfamilienhaus
Baujahr
1998
Energie & Heizung
Warum sehe ich diese Anzeige? – Du siehst diese Anzeige basierend auf Ihrer Navigation auf unserer Website und den Suchkriterien, die du verwendet hast.
Energieausweistyp
Bedarfsausweis
Gebäudetyp
Wohngebäude
Baujahr laut Energieausweis
1998
Wesentliche Energieträger
OEL
Gültigkeit
bis 15.01.2036
Effizienzklasse
F
Endenergiebedarf
169,35 kWh/(m²·a)
Weitere Energiedaten
Energieträger
Öl
Heizungsart
Zentralheizung
Details
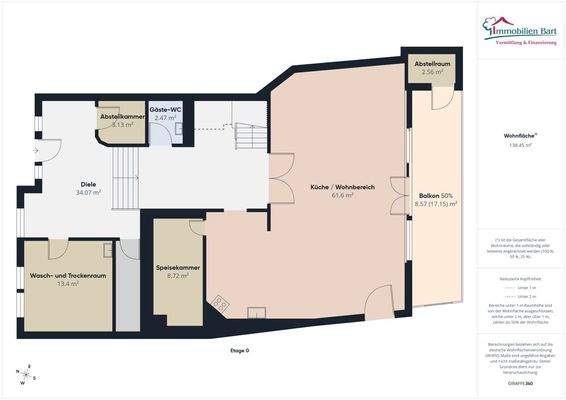
Objektbeschreibung
10 MINUTEN BIS L - REMICH / SCHENGEN!
Hier in KIRF-MEURICH bieten wir Ihnen dieses charmante Wohnhaus an.
Mit einer Wohnfläche von ca. 228 m² gewährt die Immobilie nicht nur viel Platz für die Familie sondern beeindruckt jeden mit der tollen Aussicht ins Grüne.
Die Raumaufteilung ist wie folgt...
Ausstattung
Die Böden sind mit Fliesen und Laminat ausgestattet
Die Beheizung erfolgt durch eine Öl-Zentralheizung
Besonderheiten der Immobilie:
- Baujahr 1998!
- offenes und großzügiges Wohnen
- unverbaubarer Weitblick
- 3 Schlafzimmer
- Balkon
- Keller
- großer Partykeller
Preisinformation
2 Stellplätze
Weitere Informationen
Sonstiges
Unser gesamtes Immobilienangebot können Sie unter www.immobilien-bart.de einsehen.
Haben wir Ihr Interesse geweckt? Für einen unverbindlichen Besichtigungstermin stehen wir Ihnen nach vorheriger Terminabsprache gerne zur Verfügung. Bitte haben Sie Verständnis dafür, dass wir Anfragen nur bearbeiten, wenn...
Anbieter der Immobilie
Online-ID: 2n9kf5w
Referenznummer: 10733
Finde Angebote wie dieses
Hier geht es zu unserem Impressum, den Allgemeinen Geschäftsbedingungen, den Hinweisen zum Datenschutz und nutzungsbasierter Online-Werbung.