
Müller Immobilien
Herr Felix Schmidt
004 ···
Nr. anzeigenPreise & Kosten
Provision für Käufer
3,57 % inkl. 19% gesetzlicher MwSt. zzgl. MwSt.
Lage
Diese Traumvilla mit Alpenblick und Pool liegt in ruhiger, unverbaubarer Wohnlage am südlichen Stadt- und Waldrand in der charmanten Stadt Krumbach, ideal gelegen im Süden des Landkreises Günzburg. Diese Immobilie bietet ihren zukünftigen Bewohnern die perfekte Kombination aus Wohnqualität und einer hervorragenden Anbindung...
Das Haus
Kategorie
Villa
Baujahr
2000
Energie & Heizung
Warum sehe ich diese Anzeige? – Du siehst diese Anzeige basierend auf Ihrer Navigation auf unserer Website und den Suchkriterien, die du verwendet hast.
Energieausweistyp
Bedarfsausweis
Gebäudetyp
Wohngebäude
Baujahr laut Energieausweis
2000
Wesentliche Energieträger
ERDGAS_LEICHT
Gültigkeit
bis 27.09.2035
Effizienzklasse
B
Endenergiebedarf
67,40 kWh/(m²·a)
Weitere Energiedaten
Haustyp
Massivhaus
Energieträger
Gas
Heizungsart
Fußbodenheizung, Luft-/Wasser-Wärmepumpe
Details
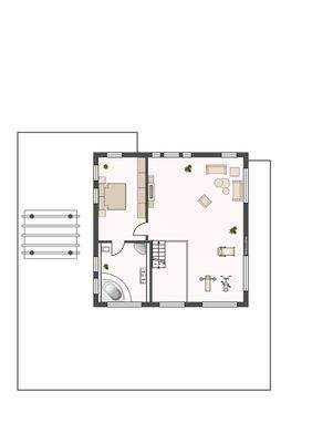
Objektbeschreibung
Willkommen in der exquisiten Villa in ruhiger, unverbaubarer Waldrandlage am südlichen Stadtrand von Krumbach.
Dieses Traumhaus lässt keine Wünsche offen! Die herrliche Stadtvilla, die im Jahr 2000 in solider Massivbauweise errichtet und 2019 - 2023 umfassend erweitert wurde, präsentiert sich in einem neuwertigen Zustand...
Ausstattung
# Baujahr 2000
# Umfassende Erweiterung 2019 - 2023
# Grundstück 1002 qm
# Wohnfläche ca. 200 qm
# 2 XXL-Doppelgaragen
# 2023 Luft-/Wasser-Wärmepumpe in Kombination mit Gasheizung (kann auf Wasserstoff umgerüstet werden)
# Saunahaus mit Nass- und Ruhebereich
# Pool beheizbar über neue Wärmepumpe...
Preisinformation
4 Garagenstellplätze
Weitere Informationen
Sonstiges
Angaben zum Energieausweis:
Verbrauchsausweis:
- ausgestellt: 14.02.2025
- gültig bis 13.02.2035
- Endenergieverbrauch : 67,4 kWh
- Primärenergiebedarf: 93,5 kWh
- Wesentlicher Energieträger: Strom-Mix
- Energieeffizienz: Klasse "B"
- Baujahr: 2000
- Baujahr Wärmeerzeuger: 2023...
Anbieter der Immobilie
Online-ID: 2n9ka5z
Referenznummer: 646
Finde Angebote wie dieses
Hier geht es zu unserem Impressum, den Allgemeinen Geschäftsbedingungen, den Hinweisen zum Datenschutz und nutzungsbasierter Online-Werbung.