
IMMOVISTA GmbH - Immobilienmakler Dresden
004 ···
Nr. anzeigenPreise & Kosten
Provision für Käufer
2,98 %
Lage
Die Villa liegt in einer ruhigen Seitenstraße. Die ruhige, grüne Lage wird Sie begeistern. Fußläufig erreicht man in wenigen Minuten eine Bushaltestelle. Die Innenstadt kann man ebenfalls fußläufig erreichen. Durch die umgebende Bebauung bekommt man nichts von der pulsierenden Großstadt mit. Im Stadtteil gibt es Kindergärten...
Die Wohnung
Wohnungslage
Dachgeschoss
Wohnanlage
Energie & Heizung
Warum sehe ich diese Anzeige? – Du siehst diese Anzeige basierend auf Ihrer Navigation auf unserer Website und den Suchkriterien, die du verwendet hast.
Energieausweistyp
Verbrauchsausweis
Gebäudetyp
Wohngebäude
Baujahr laut Energieausweis
1932
Wesentliche Energieträger
GAS
Gültigkeit
bis 16.01.2035
Effizienzklasse
E
Endenergieverbrauch
145,80 kWh/(m²·a)
Weitere Energiedaten
Energieträger
Gas, Solar
Heizungsart
offener Kamin, Zentralheizung
Details
Objektbeschreibung
Verkauft wird eine Eigentumswohnung in einem Zweifamilienhaus in bevorzugter Lage der Südvorstadt. Diese Villa wurde 1932 erbaut und im Jahr 2000/2002 komplett grundsaniert. Die Gartenanlage wurde 2015 mit einem beheizbaren Gartenhaus (mit Partyküche) ergänzt. Dieses ist wie die angrenzende Terrasse nebst Gartenanteil als...
Ausstattung
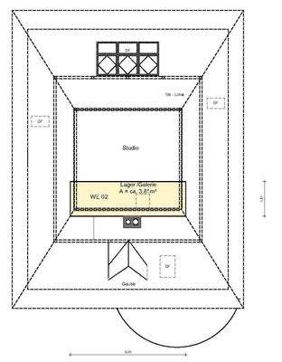
- Gartenhaus (40 m²) mit Einbauküche und Fußbodenheizung Bj. 2015 (unterteilt in einen Geräteraum und einen verglasten Raum mit Einbauküche und Fußbodenheizung)
- Wohnzimmer im Obergeschoss mit modernem Kamin
- ein Stellplatz im Carport
- Holzdielen, Parkett, Fliesen
- Gastherme (inkl. Pufferspeicher erneuert in...
Preisinformation
1 Carportplatz
Weitere Informationen
Sonstiges
Es liegt ein Energieverbrauchsausweis vor.
Dieser ist gültig bis 16.1.2035.
Endenergieverbrauch beträgt 145.80 kwh/(m²*a).
Wesentlicher Energieträger der Heizung ist Gas.
Das Baujahr des Objekts lt. Energieausweis ist 1932.
Die Energieeffizienzklasse ist E.
Das Angebot ist freibleibend und...
Anbieter der Immobilie
Online-ID: 2n9jq5u
Referenznummer: 9185
Finde Angebote wie dieses
Hier geht es zu unserem Impressum, den Allgemeinen Geschäftsbedingungen, den Hinweisen zum Datenschutz und nutzungsbasierter Online-Werbung.