

Claus R. Menges GmbH
064 ···
Nr. anzeigenPreise & Kosten
Kaution
1.800,00
Warum sehe ich diese Anzeige? – Du siehst diese Anzeige basierend auf Ihrer Navigation auf unserer Website und den Suchkriterien, die du verwendet hast.
Lage
Im Eichendorffring wohnen Sie in einer ruhigen Wohnlage. Bäcker, Lebensmitteldiscounter und Weiteres erreichen Sie fußläufig innerhalb kurzer Zeit. In gut 10 Minuten sind Sie mit dem Bus oder dem Auto in der Innenstadt von Gießen. Auch eine Bahnhaltestelle befindet sich in der näheren Umgebung. Die Nachbarstadt Wetzlar...
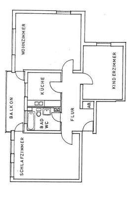
Die Wohnung
Wohnungslage
2. Geschoss
Bezug
sofort
Wohnanlage
Energie & Heizung
Warum sehe ich diese Anzeige? – Du siehst diese Anzeige basierend auf Ihrer Navigation auf unserer Website und den Suchkriterien, die du verwendet hast.
Energieausweistyp
Verbrauchsausweis
Gebäudetyp
Wohngebäude
Wesentliche Energieträger
Öl
Gültigkeit
26.09.2018 bis 26.09.2028
Effizienzklasse
D
Endenergieverbrauch
127,80 kWh/(m²·a)
Weitere Energiedaten
Energieträger
Öl
Details
Objektbeschreibung
Eine Bitte:
Bei Interesse gehen Sie bitte zuerst auf unsere Homepage unter www.cr-menges.de und melden sich ÜBER UNSERE SELBSTAUSKUNFT an.
Danach freuen wir uns auf Ihren Anruf und helfen Ihnen gerne weiter.
Diese helle 3 Zimmer-Wohnung befindet sich im 2. Obergeschoss eines größeren Wohnkomplexes im Gießener...
Weitere Informationen
Baujahr
1963
Sonstiges
Dieses Angebot ist freibleibend und unverbindlich, Irrtum sowie Zwischenvermietung vorbehalten. Das Objektangebot wurde von uns nach bestem Wissen sorgfältig zusammengestellt. Wir können jedoch nicht gewährleisten, dass alle Angaben vollständig sind. Die Daten wurden vom Vermieter auf die...
Anbieter der Immobilie
Online-ID: 2n9jc54
Referenznummer: 10011.010 WE 10
Finde Angebote wie dieses
Hier geht es zu unserem Impressum, den Allgemeinen Geschäftsbedingungen, den Hinweisen zum Datenschutz und nutzungsbasierter Online-Werbung.