

HR Fine Living Immobilien
Herr Christian Schlepple
015 ···
Nr. anzeigenPreise & Kosten
Provision für Käufer
3,57 % des Kaufpreises inkl. 19% MwSt.
Lage
Im Nordosten des Landkreises Heilbronn gelegen, erstreckt sich das 25,23 qkm große Stadtgebiet größtenteils über die Kocher-Jagst-Ebenen, konkret das Jagsttal und die Seckach-Kessach-Riedel; im Nordosten hat die Gemeinde Anteil am Bauland.
Hauptgewässer ist die Jagst, die das Gelände in drei Schlingen von Osten nach...
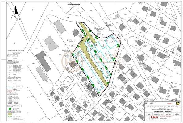
Das Grundstück
Details
Objektbeschreibung
Das angebotene Grundstück befindet sich in der idyllischen Gemeinde Widdern im Landkreis Heilbronn in Baden-Württemberg.
Das insgesamt 5.000 m² große Grundstück bietet viel Platz für individuelle Bebauungsmöglichkeiten und ist somit ideal für die Verwirklichung Ihres Projektes geeignet.
Für dieses Grundstück...
Ausstattung
- 5000m² Baugrundstück für reines Wohngebiet (kein Mischgebiet)
- Projektierung für 5 Doppelhäuser liegt vor(danach wurde der Bebauungsplan der Stadt erstellt)
- KfW-Förderanträge für Doppelhäuser liegen vor; Einreichungsfrist auf 3 Jahre verlängert
Weitere Informationen
Sonstiges
Gerne weisen wir darauf hin, dass wir im Sinne von §652 BGB für Sie als Interessenten mit Provision tätig sind. Bitte haben Sie Verständnis dafür, dass wir nur Anfragen mit vollständiger Adressangabe und erreichbarer Handynummer bearbeiten können.
Sie möchten Ihre Immobilie verkaufen - und suchen den...
Anbieter der Immobilie
HR Fine Living Immobilien
Querstr. 35/1, 73084 Salach

Online-ID: 2n9jb5l
Referenznummer: WE- 189
Finde Angebote wie dieses
Hier geht es zu unserem Impressum, den Allgemeinen Geschäftsbedingungen, den Hinweisen zum Datenschutz und nutzungsbasierter Online-Werbung.