

Immobilien Impuls
Herr Gunther Müller
039 ···
Nr. anzeigenPreise & Kosten
Provision für Käufer
provisionsfrei
Das Haus
Baujahr
2025
Bezug
sofort
Energie & Heizung
Warum sehe ich diese Anzeige? – Du siehst diese Anzeige basierend auf Ihrer Navigation auf unserer Website und den Suchkriterien, die du verwendet hast.
Weitere Energiedaten
Energieträger
Fernwärme
Heizungsart
Fußbodenheizung, Zentralheizung
Details
Objektbeschreibung
Weil Zeit so wichtig geworden ist. Weil Bauen so teuer geworden ist. Weil Energie immer teurer wird.
Was jedoch schon immer am wichtigsten war: Wohlfühlen in den eigenen 4 Wänden!!
Für diese Themen bieten wir eine Lösung: Ein modernes, energieeffizientes, helles und großzügiges Einfamilienhaus auf einem kleinen...
Weitere Informationen
Sonstiges
Dieses einzugsfertig gebaute Haus steht Ihnen mit Kauf sofort zur Verfügung. Keine Renovierungsarbeiten, keine Rücksicht auf zukünftige Auflagen. Hier heißt es kaufen-einziehen-wohlfühlen.
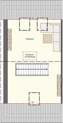
143 m² verteilen sich auf 2 Etagen plus das ausgebaute Dachgeschoss. Ein begehbarer Spitzboden dient als ergänzender...
Anbieter der Immobilie

Online-ID: 2n9j35p
Referenznummer: 20260210KASTAgm
Finde Angebote wie dieses
Hier geht es zu unserem Impressum, den Allgemeinen Geschäftsbedingungen, den Hinweisen zum Datenschutz und nutzungsbasierter Online-Werbung.