

Volksbank Immobilien Münsterland GmbH
Herr Marco Kohne
025 ···
Nr. anzeigenPreise & Kosten
Kaution
2.800,00
Warum sehe ich diese Anzeige? – Du siehst diese Anzeige basierend auf Ihrer Navigation auf unserer Website und den Suchkriterien, die du verwendet hast.
Lage
Am 1. Januar 1975 wurden die Städte Borghorst und Burgsteinfurt zur Stadt Steinfurt zusammengeschlossen.
Borghorst befindet sich im schönen Münsterland und bietet eine gute Infrastruktur mit zahlreichen Einkaufsmöglichkeiten in der Innenstadt und dem BWS-Center. Dank des Bahnhofes und der Zugverbindung nach Münster -...
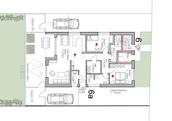
Die Wohnung
Wohnungslage
Erdgeschoss
Wohnanlage
Energie & Heizung
Warum sehe ich diese Anzeige? – Du siehst diese Anzeige basierend auf Ihrer Navigation auf unserer Website und den Suchkriterien, die du verwendet hast.
Weitere Energiedaten
Heizungsart
Fußbodenheizung
Details
Objektbeschreibung
Steinfurt-Borghorst, zu vermieten ab dem 01.05.2026 - moderner Neubau, Erstbezug.
Entdecken Sie diese moderne und hochwertige 3-Zimmerwohnung mit Garten und Carport in einem Wohnhaus mit nur zwei Wohneinheiten in Steinfurt-Borghorst nähe Marienhospital (UKM) und Gymnasium.
Das Zweiparteienhaus wird als...
Ausstattung
- Keine zusätzliche Maklerprovision
- Hochwertige - Lichtdruchflutete 3 Zimmer Wohnung
- KfW-40 Standard in Massivbauweise
- Kunststofffenster mit Dreifachverglasung
- Fenster innen weiß, außen grau foliert
- elektrische Rollläden
- Essen/Wohnen/Kochen, Flur, HWR, sowie Bad/WC werden mit Fliesen...
Preisinformation
1 Carportplatz
1 Stellplatz
Weitere Informationen
Sonstiges
Die Immobilienangebote verstehen sich freibleibend und unverbindlich. Zwischenverkauf ausdrücklich vorbehalten. Die Objektbeschreibungen wurde aufgrund der Angaben der Verkäufer erstellt. Für die Richtigkeit wird keine Haftung übernommen. Mit dem Eigentümer wurde vereinbart, dass Besichtigungen nur gemeinsam mit...
Anbieter der Immobilie
Volksbank Immobilien Münsterland GmbH
Neubrückenstr. 66, 48143 Münster

Online-ID: 2n9g55v
Referenznummer: 21209
Finde Angebote wie dieses
Hier geht es zu unserem Impressum, den Allgemeinen Geschäftsbedingungen, den Hinweisen zum Datenschutz und nutzungsbasierter Online-Werbung.