
ohne-makler.net - Immobilien selbst vermarkten
Privat von Maximilian Neumaier
Kontaktiere den Anbieter schriftlich, es ist keine Telefonnummer hinterlegt.
Preise & Kosten
Warum sehe ich diese Anzeige? – Du siehst diese Anzeige basierend auf Ihrer Navigation auf unserer Website und den Suchkriterien, die du verwendet hast.
Lage
Wohnen & Leben in Bad Griesbach
In unverbaubarer Bestlage mit traumhaftem Ausblick und unweit
vom Stadtzentrum Bad Griesbach gelegen, entstehen vier
Mehrfamilienhäuser mit insgesamt 44 Wohneinheiten der
besonderen und modernen Art.
Infrastruktur (im Umkreis von 5 km):
Apotheke, Allgemeinmediziner...
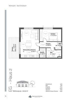
Die Wohnung
Wohnungslage
Erdgeschoss
Bezug
nach Absprache
Wohnanlage
Energie & Heizung
Warum sehe ich diese Anzeige? – Du siehst diese Anzeige basierend auf Ihrer Navigation auf unserer Website und den Suchkriterien, die du verwendet hast.
Energieausweistyp
Verbrauchsausweis
Gebäudetyp
Wohngebäude
Effizienzklasse
A+
Endenergieverbrauch
17,00 kWh/(m²·a)
Weitere Energiedaten
Energieträger
Pellets
Heizungsart
Fußbodenheizung
Details
Objektbeschreibung
360°-Rundgang: https://www.ohne-makler.net/panorama/357021/
Traumhaft Wohnen & Leben in Bad Griesbach
Hier kommt Architektur und Wohngefühl in Einklang. Die
Wohnungen vereinen ein angenehmes Gefühl von Qualität und
Stilsicherheit. Die großzügig geschnittenen, lichtdurchfluteten
Räume bestechen durch...
Ausstattung
Terrasse, Garten, Keller, Fahrstuhl, Einbauküche, Barrierefrei, Parkett, Fliesen
Bemerkungen:
Moderne & gehobene Ausstattung:
+ Moderne Bauweise und hochwertige Ausstattung nach KfW 40
NH Effizienzhaus Standard
+ Wärmedämmende Ziegel
+ Einbauküche
+ PV-Anlage mit 10 Kwp
+ Traumhafte...
Preisinformation
1 Carportplatz, Miete: 100,00 EUR
1 Stellplatz, Miete: 100,00 EUR
Nettokaltmiete: 800,00 EUR
Weitere Informationen
Sonstiges
Heizungsart: Fußbodenheizung
Energieträger: Holzpellets
Makleranfragen nicht erwünscht. Nach § 7 UWG sind unaufgeforderte Kontaktaufnahmen durch Makler ohne ausdrückliche Einwilligung des Empfängers verboten!
ohne-makler (OM) ist weder Anbieter noch Vermittler der Immobilie. OM betreibt eine...
Anbieter der Immobilie
ohne-makler.net - Immobilien selbst vermarkten
Humboldtstr. 25 A, 21509 Glinde
Privat von Maximilian Neumaier
Dein Ansprechpartner
Kontaktiere den Anbieter schriftlich, es ist keine Telefonnummer hinterlegt.
Online-ID: 2n9df5t
Referenznummer: 357021
Finde Angebote wie dieses
Hier geht es zu unserem Impressum, den Allgemeinen Geschäftsbedingungen, den Hinweisen zum Datenschutz und nutzungsbasierter Online-Werbung.