

Ambiente Immobilien
Frau Karin Emrich
004 ···
Nr. anzeigenPreise & Kosten
Provision für Käufer
1,79% inkl. MwSt. v. Kaufpreis
Käuferprovision
Lage
Die Immobilie befindet sich in der beliebten Gemeinde Penzing im oberbayerischen Landkreis Landsberg am Lech – einer familienfreundlichen und gewachsenen Wohnlage mit hoher Lebensqualität.
Das Einfamilienhaus liegt in einer ruhigen, alt eingewachsenen Anliegerstraße innerhalb eines gepflegten Wohngebiets. Die Umgebung ist...
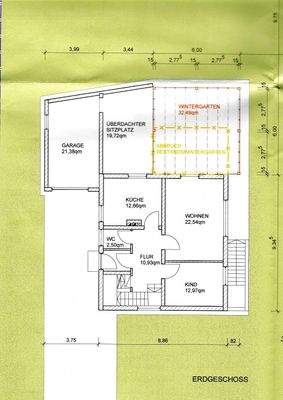
Das Haus
Kategorie
Einfamilienhaus
Baujahr
1968
Bezug
sofort
Derzeitige Nutzung
frei
Energie & Heizung
Warum sehe ich diese Anzeige? – Du siehst diese Anzeige basierend auf Ihrer Navigation auf unserer Website und den Suchkriterien, die du verwendet hast.
Energieausweistyp
Bedarfsausweis
Weitere Energiedaten
Energieträger
Elektro
Heizungsart
Luft-/Wasser-Wärmepumpe, Zentralheizung
Details
Objektbeschreibung
Kernsanierter Wohntraum auf Neubau-Niveau Dieses außergewöhnliche Einfamilienhaus aus dem Jahr 1968 wurde mit höchstem Anspruch, kompromissloser Qualität und viel Gespür für Ästhetik vollständig kernsaniert. Heute präsentiert sich die Immobilie technisch und optisch wie ein Neubau – mit modernster Energietechnik, hochwertigen...
Ausstattung
* 27 Hochleistungs-Panels auf beiden Dachflächen
* 12KW Batterie mit Wallcharger
*Autark-Schaltung 100% bei Stromausfall... Versorgung dann über PV & Batterie
*Wärmepumpe 12 KW mit neuen Heizkörpern Smart Home Thermostaten
**fertige Installation für Sauna und Pool / Whirlpool In der Lounge
Anbieter der Immobilie
Ambiente Immobilien
Leitenweg 22, 86929 Penzing

Online-ID: 2n9da5p
Referenznummer: 14496
Finde Angebote wie dieses
Hier geht es zu unserem Impressum, den Allgemeinen Geschäftsbedingungen, den Hinweisen zum Datenschutz und nutzungsbasierter Online-Werbung.