
GSW Gesellschaft für Siedlungs-und Wohnungsbau Baden-Württ. mbH
Frau Stephanie Lilienthal-Leberer
+49 ···
Nr. anzeigenPreise & Kosten
Provision für Käufer
provisionsfrei
Lage
Das Wohnprojekt befindet sich in erstklassiger Lage, nur etwa fünf Minuten Fußweg vom Zentrum Albstadt-Ebingens und seiner Fußgängerzone entfernt. Geschäfte des täglichen Bedarfs, Apotheken, Ärzte, Kitas sowie Schulen können Sie mit dem Auto oder dem Rad schnell erreichen.
Vor allem für Pendler interessant:
Der...
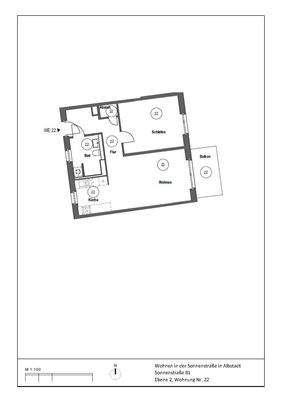
Die Wohnung
Wohnungslage
3. Geschoss
Bezug
nach Rücksprache
Wohnanlage
Energie & Heizung
Warum sehe ich diese Anzeige? – Du siehst diese Anzeige basierend auf Ihrer Navigation auf unserer Website und den Suchkriterien, die du verwendet hast.
Energieausweistyp
Bedarfsausweis
Gebäudetyp
Wohngebäude
Effizienzklasse
A+
Endenergiebedarf
23,30 kWh/(m²·a)
Weitere Energiedaten
Heizungsart
Fußbodenheizung
Details
Objektbeschreibung
Die GSW Sigmaringen mbH erstellte 2022/2023 in der Sonnenstraße in Albstadt-Ebingen hochwertige Eigentumswohnungen.
Das Gebäude wurde im KfW-55-Effizienzhaus-Standard errichtet. Eine Luftwärmepumpe mit Gasbrennwertkessel und einer PV-Anlage versorgen das Haus umweltfreundlich und effizient mit Warmwasser und...
Ausstattung
Hier stellen wir eine 2-Zimmer-Wohnung mit Balkon im 2.OG vor:
Die attraktive Eigentumswohnung in der Sonnenstraße in Albstadt-Ebingen bietet moderne barrierearme Ausstattung mit einem hohen Maß an Komfort. Die helle, lichtdurchflutete Optik macht den Reiz dieser Wohnung aus.
Alle Vorzüge auf einen Blick:
*...
Weitere Informationen
Sonstiges
Das Objekt verfügt über insgesamt 33 Wohnungen, verteilt auf vier Geschosse.
Unter dem Gebäude befindet sich eine Tiefgarage mit 23 Tiefgaragenstellplätzen die bereits über eine Vorbereitung für E-Mobilität verfügen.
Stichworte
Anzahl der Schlafzimmer: 1, Anzahl der Badezimmer: 1, Anzahl Balkone...
Dokumente
Anbieter der Immobilie

GSW Gesellschaft für Siedlungs-und Wohnungsbau Baden-Württ. mbH
Online-ID: 2n9aw5m
Referenznummer: 1029.22
Finde Angebote wie dieses
Hier geht es zu unserem Impressum, den Allgemeinen Geschäftsbedingungen, den Hinweisen zum Datenschutz und nutzungsbasierter Online-Werbung.