
BIRNBAUM Immobilien GmbH
004 ···
Nr. anzeigenPreise & Kosten
Kaution
2.970,00
Warum sehe ich diese Anzeige? – Du siehst diese Anzeige basierend auf Ihrer Navigation auf unserer Website und den Suchkriterien, die du verwendet hast.
Lage
Die Eigentumswohnanlage befindet sich im beliebten Greifswalder Stadtteil "südliche Mühlenvorstadt". Diese Wohnlage erfreut sich vor allem wegen seiner fußläufigen Nähe zur Innenstadt, der "grünen" Innenhöfe, der allgemeinen Grünanlagen im Umfeld und der etwas weitläufigen Bebauung großer Beliebtheit. Infrastrukturelle...
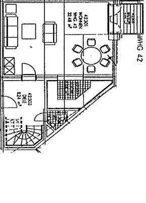
Die Wohnung
Wohnungslage
3. Geschoss
Bezug
sofort
Wohnanlage
Energie & Heizung
Warum sehe ich diese Anzeige? – Du siehst diese Anzeige basierend auf Ihrer Navigation auf unserer Website und den Suchkriterien, die du verwendet hast.
Energieausweistyp
Verbrauchsausweis
Gebäudetyp
Wohngebäude
Baujahr laut Energieausweis
1995
Wesentliche Energieträger
GAS
Gültigkeit
bis 01.10.2028
Effizienzklasse
D
Endenergieverbrauch
100,30 kWh/(m²·a)
Weitere Energiedaten
Energieträger
Gas
Heizungsart
Zentralheizung
Details
Objektbeschreibung
Die helle und freundliche Maisonette-Wohnung ist im Dachgeschoss eines Appartementhauses gelegen. Zur Ausstattung des Hauses gehören ein Fahrstuhl und eine Tiefgarage. Im Keller befinden sich Fahrradabstellmöglichkeiten und ein Raum mit Waschmaschinen und Wäschetrocknern zur allgemeinen Nutzung.
Im unteren Bereich der...
Ausstattung
Die Wohnung hat folgende Ausstattung:
. großzügiges Bad mit freistehender Badewanne, bodengleicher Dusche, Bidet und Fenster
. Küche mit Einbauküche
. Laminat
. Balkon
. Kellerabteil
. Tiefgaragenstellplatz (Doppelparker-Lift) im Gesamtmietpreis inbegriffen
Preisinformation
1 Tiefgaragenstellplatz, Miete: 50,00 EUR
Weitere Informationen
Sonstiges
Wir bedanken uns für Ihr Interesse an unserem Angebot.
Nach Bekanntgabe Ihrer Postanschrift und Telefonnummer über das Kontaktformular nehmen wir zeitnah Kontakt mit Ihnen auf und stehen Ihnen für eine Besichtigung oder eine Beratung gern zur Verfügung.
Alle Angaben sind ohne Gewähr und basieren...
Anbieter der Immobilie
Online-ID: 2n9a45p
Referenznummer: 00571_42
Finde Angebote wie dieses
Weitere Immobilien
Hier geht es zu unserem Impressum, den Allgemeinen Geschäftsbedingungen, den Hinweisen zum Datenschutz und nutzungsbasierter Online-Werbung.