
Wohlfühlmakler Immobilien GmbH
Herr Joe Einicke
004 ···
Nr. anzeigenPreise & Kosten
Provision für Käufer
Die Käuferprovision beträgt 4.999,00 € inkl. 19 % MwSt..
Lage
Die Immobilie befindet sich in der Ortschaft Nienhagen, einer ruhigen und gewachsenen Gemeinde im Landkreis Börde. Nienhagen zeichnet sich durch seinen ländlichen Charakter, eine entspannte Wohnatmosphäre und großzügige Grundstücksstrukturen aus und bietet ideale Voraussetzungen für naturnahes und entschleunigtes...
Das Haus
Kategorie
Einfamilienhaus
Baujahr
1930
Energie & Heizung
Warum sehe ich diese Anzeige? – Du siehst diese Anzeige basierend auf Ihrer Navigation auf unserer Website und den Suchkriterien, die du verwendet hast.
Energieausweistyp
Verbrauchsausweis
Gebäudetyp
Wohngebäude
Baujahr laut Energieausweis
1930
Wesentliche Energieträger
OEL
Gültigkeit
bis 13.01.2036
Effizienzklasse
F
Endenergieverbrauch
188,40 kWh/(m²·a)
Weitere Energiedaten
Energieträger
Öl
Details
Objektbeschreibung
Diese charmante Wohnimmobilie aus dem Baujahr 1930 befindet sich auf einem ca. 566,00 m² großen Grundstück und verbindet den Charakter eines Bestandsgebäudes mit umfangreichen Sanierungs- und Modernisierungsmaßnahmen.
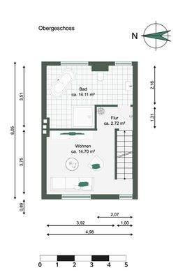
Die Wohnfläche von ca. 91,28 m² verteilt sich auf drei gut geschnittene Zimmer und bietet ein angenehmes...
Ausstattung
- Drei großzügige Zimmer
- Fußbodenheizung im Obergeschoss (OG)
- Einbauküche
- Großformatige Fliesen im sanierten Wohnbereich
- Luxuriöses Badezimmer mit freistehender Badewanne
- Ebenerdige Dusche mit Regenduschkopf
- Brunnen auf dem Grundstück
- Hochwertige...
Preisinformation
3 Stellplätze
Weitere Informationen
Sonstiges
Alle Angaben in diesem Exposé beruhen auf Informationen des Verkäufers und wurden mit Sorgfalt zusammengestellt. Für deren Richtigkeit, Vollständigkeit und Aktualität übernehmen wir keine Haftung. Irrtümer und Zwischenverkauf bleiben vorbehalten.
Die dargestellten Fotos dienen der Veranschaulichung...
Anbieter der Immobilie
Wohlfühlmakler Immobilien GmbH
Elsterweg 2, 39110 Magdeburg
Online-ID: 2n99654
Referenznummer: JE-RMH-001
Finde Angebote wie dieses
Hier geht es zu unserem Impressum, den Allgemeinen Geschäftsbedingungen, den Hinweisen zum Datenschutz und nutzungsbasierter Online-Werbung.