

Engel & Völkers - Elmshorn
Frau Janne Bugtrup
041 ···
Nr. anzeigenPreise & Kosten
Provision für Käufer
3,57% inkl. MwSt.
Abschreibung/Anlage
Denkmalschutz-Afa
Lage
Die kleine, aktive Gemeinde Schafstedt liegt idyllisch eingebettet in einer abwechslungsreichen Geestlandschaft mit Wäldern, Weiden und Mooren. Die reizvolle Umgebung in unmittelbarer Nähe zum Nord-Ostsee-Kanal bietet sich für Spaziergänge, Wanderungen und Radtouren geradezu an. Schafstedt liegt im Osten des Kreises...
Das Haus
Baujahr
1868
Energie & Heizung
Warum sehe ich diese Anzeige? – Du siehst diese Anzeige basierend auf Ihrer Navigation auf unserer Website und den Suchkriterien, die du verwendet hast.
Energieausweis: für diesen Gebäudetyp nicht notwendig
Weitere Energiedaten
Energieträger
Pellets
Details
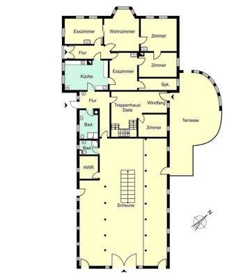
Objektbeschreibung
Dieser ca. 1868 erbaute, denkmalgeschütze Reetdach-Bauernhof zwischen Hamburg und Sankt Peter-Ording bietet auf seinen insgesamt ca. 340 m² Wohnfläche den idealen Ort, um Wohnen und Arbeiten unter einem Dach zu vereinen. Es gibt unzählige Möglichkeiten – von Praxen und Büroräumen über Werkstätten bis hin zu Ferienwohnungen...
Weitere Informationen
Sonstiges
Der Makler-Vertrag mit uns und/oder unserem Beauftragten kommt durch schriftliche Vereinbarung oder durch die Inanspruchnahme unserer Maklertätigkeit auf der Basis des Objekt-Exposés und seiner Bedingungen zustande. Die Käufercourtage in Höhe von 3,57 % auf den Kaufpreis einschließlich gesetzlicher Umsatzsteuer...
Anbieter der Immobilie

Online-ID: 2n98j5c
Referenznummer: W-02TWZI-8
Finde Angebote wie dieses
Hier geht es zu unserem Impressum, den Allgemeinen Geschäftsbedingungen, den Hinweisen zum Datenschutz und nutzungsbasierter Online-Werbung.