

KENSINGTON Immobilien Berlin-Pankow
Herr Leon Weiß
+49 ···
Nr. anzeigenPreise & Kosten
Provision für Käufer
3,57 % inkl. der gesetzl. MwSt. von 19 % des Kaufpreises
Lage
Die Immobilie befindet sich in Panketal im Ortsteil Zepernick und liegt damit in einer der gefragten Wohnlagen im direkten Berliner Umland. Die Umgebung ist geprägt von Einfamilienhäusern, viel Grün und einer freundlichen Nachbarschaft.
Besonders attraktiv ist die hervorragende Verkehrsanbindung. Der S-Bahnhof...
Das Haus
Kategorie
Einfamilienhaus
Baujahr
1973
Bezug
sofort
Energie & Heizung
Warum sehe ich diese Anzeige? – Du siehst diese Anzeige basierend auf Ihrer Navigation auf unserer Website und den Suchkriterien, die du verwendet hast.
Energieausweistyp
Verbrauchsausweis
Gebäudetyp
Wohngebäude
Wesentliche Energieträger
Gas
Gültigkeit
14.03.2026 bis 14.03.2036
Effizienzklasse
F
Endenergieverbrauch
166,62 kWh/(m²·a)
Weitere Energiedaten
Energieträger
Gas
Heizungsart
offener Kamin
Details
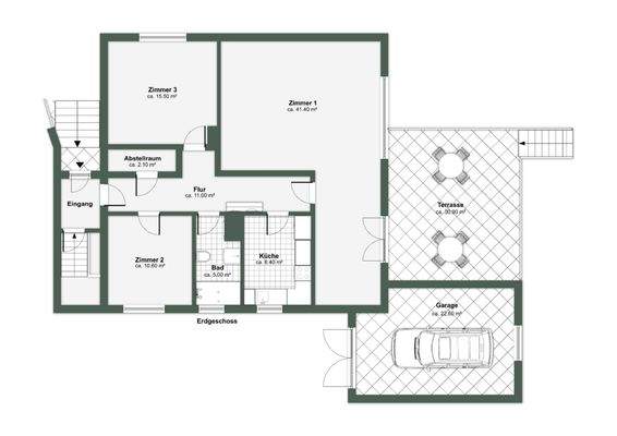
Objektbeschreibung
Dieses Einfamilienhaus in Panketal-Zepernick vereint eine solide Bausubstanz, großzügige Flächen und ein außergewöhnlich großes Grundstück mit viel Potenzial für die Zukunft. Das im Jahr 1973 errichtete Haus bietet rund 109 m² Wohnfläche sowie zusätzliche 114 m² Nutzfläche und steht auf einem beeindruckenden Grundstück von...
Ausstattung
. Vollunterkellert
. Gasheizung aus dem Jahr 2023
. Zweifach verglaste Fenster
. Kamin im Wohnbereich
. Einbauküche vorhanden
. 26 m² große Terrasse
. Überdachter Pool im Garten
. Sauna im Keller
. 2 zusätzliche Duschen und ein WC im Kellerbereich
. Garage
...
Preisinformation
3 Garagenstellplätze
Weitere Informationen
Sonstiges
Unsere Angebote sind freibleibend und unverbindlich. Die Angaben basieren auf Aussagen des Verkäufers. Irrtum sowie Zwischenverkauf bleiben ausdrücklich vorbehalten. Der Maklervertrag mit uns und/oder unserem Beauftragten kommt durch schriftliche Vereinbarung oder durch die Inanspruchnahme unserer Maklertätigkeit...
Anbieter der Immobilie

Online-ID: 2n95j5w
Referenznummer: KBP_668
Finde Angebote wie dieses
Hier geht es zu unserem Impressum, den Allgemeinen Geschäftsbedingungen, den Hinweisen zum Datenschutz und nutzungsbasierter Online-Werbung.