
Garda Haus Srl
Federica Colombi
003 ···
Nr. anzeigenPreise & Kosten
Provision für Käufer
ja maklerprovision im Preis nicht inbegriffen inkl. MwSt.
Lage
Monte Isola ist die größte Seeinsel Europas und zeichnet sich durch die völlige Abwesenheit von Privatfahrzeugen aus, eine Eigenschaft, die saubere Luft und seltene Stille garantiert. Das Gebiet ist eine Mischung aus Fischerdörfern und Naturpfaden, die die Küste mit dem Gipfel verbinden, wo sich die Wallfahrtskirche Ceriola...
Das Haus
Kategorie
Villa
Baujahr
1900
Energie & Heizung
Warum sehe ich diese Anzeige? – Du siehst diese Anzeige basierend auf Ihrer Navigation auf unserer Website und den Suchkriterien, die du verwendet hast.
Energieausweistyp
Bedarfsausweis
Gebäudetyp
Wohngebäude
Gültigkeit
bis 20.03.2036
Effizienzklasse
F
Endenergiebedarf
164,17 kWh/(m²·a)
Weitere Energiedaten
Heizungsart
offener Kamin
Details
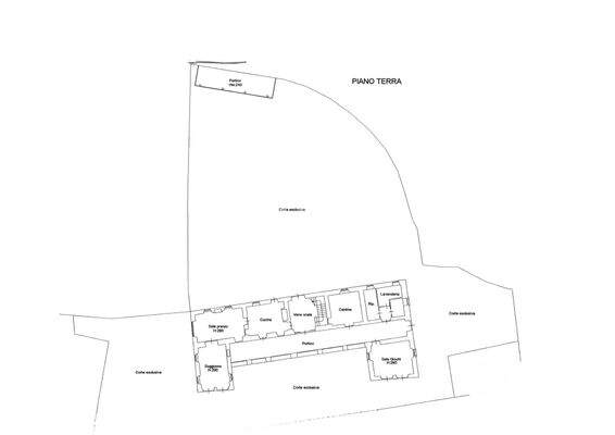
Objektbeschreibung
In einer der stimmungsvollsten Gegenden des Iseosees bieten wir ein prestigeträchtiges historisches Anwesen am Seeufer von Monte Isola zum Verkauf an. Das Anwesen besteht aus einer einzigen Villa von seltener Schönheit, eingebettet in einen großen privaten Olivenhain und mit einem eigenen Steg ausgestattet, die exklusive und...
Preisinformation
1 Stellplatz
1 Garagenstellplatz
Weitere Informationen
Sonstiges
Wir begleiten Sie nach Terminvereinbarung persönlich zu den Objekten und stehen Ihnen während des gesamten Prozesses des Immobilienerwerbs als starker und kompetenter Partner zur Seite. Mit uns gehen Sie keine Kompromisse ein und überlassen nichts dem Zufall. Umfassender Service ist für uns nicht nur ein Wort...
Anbieter der Immobilie
Garda Haus Srl
Via Meucci 77, 25080 PADENGHE SUL GARDA
Online-ID: 2n94k5x
Referenznummer: IS-65
Finde Angebote wie dieses
Hier geht es zu unserem Impressum, den Allgemeinen Geschäftsbedingungen, den Hinweisen zum Datenschutz und nutzungsbasierter Online-Werbung.