
Bauer & Göbel Immobilien GmbH
Herr Leonard Fischer
Kontaktiere den Anbieter schriftlich, es ist keine Telefonnummer hinterlegt.
Preise & Kosten
Kaution
3510
Warum sehe ich diese Anzeige? – Du siehst diese Anzeige basierend auf Ihrer Navigation auf unserer Website und den Suchkriterien, die du verwendet hast.
Lage
Das Objekt befindet sich in einer etablierten, bevorzugten Wohnlage der Gartensiedlung von Veitshöchheim (97209, Bayern). Es ist Teil eines verkehrsberuhigten Wohngebiets mit guter Nachbarschaft und hoher Wohnqualität – ideal für Familien, Paare und alle, die eine ruhige, grüne Umgebung schätzen. Sie ist geprägt von...
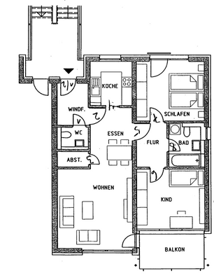
Die Wohnung
Wohnungslage
1. Geschoss (Souterrain)
Bezug
März 2026
Derzeitige Nutzung
frei
Wohnanlage
Energie & Heizung
Warum sehe ich diese Anzeige? – Du siehst diese Anzeige basierend auf Ihrer Navigation auf unserer Website und den Suchkriterien, die du verwendet hast.
Energieausweistyp
Verbrauchsausweis
Gebäudetyp
Wohngebäude
Baujahr laut Energieausweis
1999
Wesentliche Energieträger
Schweres Erdgas / H-Gas
Gültigkeit
13.03.2018 bis 13.03.2028
Effizienzklasse
D
Endenergieverbrauch
104,00 kWh/(m²·a)
Weitere Energiedaten
Energieträger
Gas
Heizungsart
Zentralheizung
Details
Objektbeschreibung
Objektbeschreibung
Das im Jahr 1999 erbaute Haus befindet sich in attraktiver Lage in der beliebten Gartensiedlung von Veitshöchheim. Die ruhige Wohnumgebung bietet ein angenehmes und familienfreundliches Umfeld mit hoher Lebensqualität.
Das Objekt überzeugt durch seine idyllische Lage mit schönem Gartenblick und...
Weitere Informationen
Besichtigungstermine
flexibel nach Vereinbarung Mo.-Fr.
Stichworte
Zustand: renoviert, gepflegt
Anbieter der Immobilie
Herr Leonard Fischer
Dein Ansprechpartner
Kontaktiere den Anbieter schriftlich, es ist keine Telefonnummer hinterlegt.
Online-ID: 2n8zd5g
Finde Angebote wie dieses
Hier geht es zu unserem Impressum, den Allgemeinen Geschäftsbedingungen, den Hinweisen zum Datenschutz und nutzungsbasierter Online-Werbung.