
ArSe GmbH
Kontaktiere den Anbieter schriftlich, es ist keine Telefonnummer hinterlegt.
Dieses Angebot ist Teil des Neubauprojekts
MINIMAL LIVING – 40 Microapartments als Kapitalanlage
Preise & Kosten
Provision für Käufer
provisionsfrei
Abschreibung/Anlage
als Kapitalanlage geeignet
Lage
Der Standort in Augsburg-Lechhausen überzeugt durch eine sehr gute Infrastruktur, schnelle Anbindung an die A8 sowie eine gute Erreichbarkeit der Innenstadt.
Kompakte Apartments sind hier bei Studenten, Berufseinsteigern und Pendlern besonders gefragt – ein klarer Vorteil für eine nachhaltige Vermietbarkeit.
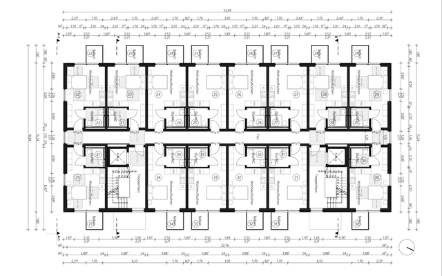
Die Wohnung
Kategorie
Apartment
Wohnungslage
2. Geschoss
Bezug
01.11.2027
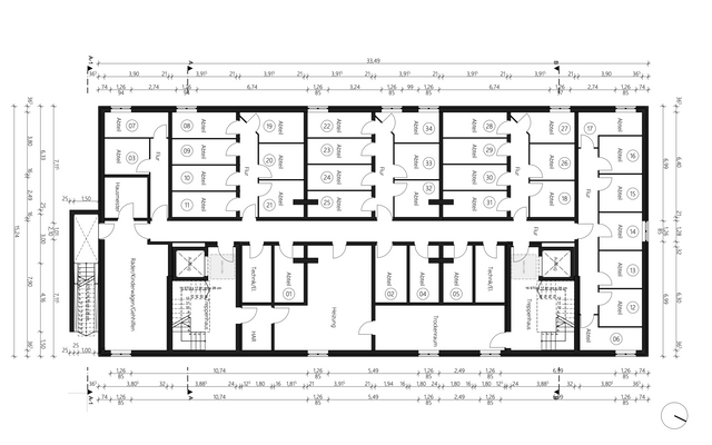
Wohnanlage
Das Neubauprojekt
Energie & Heizung
Warum sehe ich diese Anzeige? – Du siehst diese Anzeige basierend auf Ihrer Navigation auf unserer Website und den Suchkriterien, die du verwendet hast.
Weitere Energiedaten
Haustyp
KfW 40
Heizungsart
Fußbodenheizung, Luft-/Wasser-Wärmepumpe
Details
Objektbeschreibung
Apartment Nr. 25
Diese moderne Neubauwohnung im Projekt „Minimal Living“ in Augsburg-Lechhausen bietet eine attraktive Einstiegsmöglichkeit in den Immobilienmarkt – ideal für Kapitalanleger, die Wert auf Energieeffizienz, Förderfähigkeit und nachhaltige Vermietbarkeit legen.
Das Apartment überzeugt durch eine...
Ausstattung
• Massivbauweise in Stahlbeton
• Luft-Wärmepumpe
• Fußbodenheizung mit Einzelraumsteuerung
• Dezentrale Lüftung mit Wärmerückgewinnung
• 3-fach-verglaste Kunststofffenster
• Elektrische Rollläden
• Hochwertiger Parkettboden
• Modernes Duschbad
• Personenaufzug vom Untergeschoss bis ins 3...
Weitere Informationen
Letzte verfügbare Einheiten
34 Einheiten bereits reserviert – nur noch 6 verfügbar !
Hinweis:
Alle Flächen- und Maßangaben sind Circa-Angaben. Insbesondere bei Neubauprojekten können sich im Zuge der weiteren Planung sowie durch Sonderwünsche Abweichungen ergeben. Der Bauträger behält sich Änderungen der...
Anbieter der Immobilie
ArSe GmbH
Römerstraße 1, 86462 Langweid am Lech
Kontaktiere den Anbieter schriftlich, es ist keine Telefonnummer hinterlegt.
Online-ID: 2n8zc5l
Finde Angebote wie dieses
Hier geht es zu unserem Impressum, den Allgemeinen Geschäftsbedingungen, den Hinweisen zum Datenschutz und nutzungsbasierter Online-Werbung.