

Schichtel & Partner Immobilien
Frau Perschia Zandi
+49 ···
Nr. anzeigenPreise & Kosten
Provision für Käufer
7,14 % (inkl. 19,00 % MwSt.) vom Käufer
Lage
Der Stadtteil Gete, ein lebendiges und familienfreundliches Viertel Bremens, zählt etwa 10.000 Einwohner und besticht durch seine harmonische Verbindung von urbanem Leben und naturnahen Rückzugsorten. Die begehrte Wohnstraße ist geprägt von historischen Altbremer Häusern, die dem Stadtteil seinen besonderen Charme...
Das Haus
Kategorie
Mehrfamilienhaus
Baujahr
1903
Bezug
Nach Vereinbarung
Energie & Heizung
Warum sehe ich diese Anzeige? – Du siehst diese Anzeige basierend auf Ihrer Navigation auf unserer Website und den Suchkriterien, die du verwendet hast.
Energieausweistyp
Verbrauchsausweis
Gebäudetyp
Wohngebäude
Baujahr laut Energieausweis
2017
Wesentliche Energieträger
GAS
Gültigkeit
bis 13.09.2028
Effizienzklasse
D
Endenergieverbrauch
125,00 kWh/(m²·a)
Weitere Energiedaten
Energieträger
Gas
Heizungsart
offener Kamin, Zentralheizung
Details
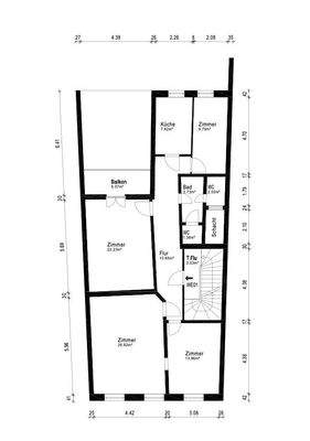
Objektbeschreibung
Ein traumhaftes Altbremer Mehrfamilienhaus mit vielseitigem Nutzungspotenzial wartet darauf, in neue Hände gelegt zu werden. Errichtet im Jahre ca. 1903 erstreckt sich diese beeindruckende Immobilie auf einer gigantischen Wohnfläche von ca. 490 m² und befindet sich auf einem ca. 344 m² großen Grundstück.
Die mit...
Ausstattung
- Repräsentatives Altbremerhaus mit 3 Einheiten
- Baujahr: ca. 1903
- Grundstücksfläche: ca. 344 m²
- Wohnfläche: ca. 490 m²
- Nutzfläche: ca. 63 m²
- Einzigartige Außenfassade mit Stuckverzierung
- Historische Rundbogenhaustür aus Mahagoniholz
- Beeindruckender Windfang aus...
Weitere Informationen
Stichworte
vermietbare Fläche: 553,86 m², Anzahl der Schlafzimmer: 11, Anzahl der Badezimmer: 2, Anzahl der separaten WCs: 4, Anzahl Balkone: 2, Anzahl Terrassen: 3, Anzahl der Wohneinheiten: 3
Anbieter der Immobilie

Online-ID: 2n8w953
Referenznummer: SP469J
Finde Angebote wie dieses
Hier geht es zu unserem Impressum, den Allgemeinen Geschäftsbedingungen, den Hinweisen zum Datenschutz und nutzungsbasierter Online-Werbung.