

Wohnbau Löw GmbH
Herr/Frau Stefan Löw
+49 ···
Nr. anzeigenPreise & Kosten
Provision für Käufer
3,57 % inkl. gesetzlicher MwSt.
Lage
Die Liegenschaft befindet sich in einem gewachsenen Mischgebiet im südlichen Teil der Gemeinde Ilsfeld in ruhiger Wohnlage.
In unmittelbarer Nähe der Immobilie befinden sich ausschließlich Wohnhäuser. In ca. 500 m Entfernung liegt die Gemeindehalle Ilsfeld mit angrenzendem Sportplatz. Das Rathaus ist ca. 1 km entfernt...
Das Haus
Kategorie
Bauernhaus
Baujahr
1900
Bezug
sofort
Energie & Heizung
Warum sehe ich diese Anzeige? – Du siehst diese Anzeige basierend auf Ihrer Navigation auf unserer Website und den Suchkriterien, die du verwendet hast.
Weitere Energiedaten
Energieträger
Gas
Heizungsart
offener Kamin, Zentralheizung
Details
Objektbeschreibung
Bei dem Kaufobjekt handelt es sich um ein charmantes Wohnhaus mit Praxiseinheit in 2,5-geschossiger Bauweise. Das Wohnhaus verbindet im Innenbereich gekonnt den ursprünglichen Altbaustil (Fachwerk) mit modernem Ausbau. Eine integrierte Garage im westlichen Bereich befindet sich unterhalb eines großzügigen Wintergartens. Im...
Ausstattung
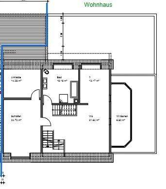
Das Wohnhaus besteht im Erdgeschoss aus einem Praxisraum, einem Gäste-WC, einem Essbereich, einer Küche, einem Gästezimmer und einer großzügigen Terrasse im südlichen und östlichen Grundstücksbereich. Das 1. Obergeschoss ist mit einem Wohnbereich mit Wintergarten, einem Bade-, einem Schlafzimmer und einer Ankleide...
Weitere Informationen
Sonstiges
Unser Angebot ist freibleibend, unverbindlich und nur für den Empfänger bestimmt. Die Weitergabe an Dritte ist untersagt. Eine Gewähr dafür, dass alle Angaben richtig und das Objekt im Augenblick des Angebotszugangs noch verfügbar ist, kann nicht übernommen werden.
Heizungsart:
Heizkoerper
Anbieter der Immobilie
Wohnbau Löw GmbH
Herbststraße 28, 47072 Heilbronn

Online-ID: 2n8vm5k
Referenznummer: 743601
Finde Angebote wie dieses
Hier geht es zu unserem Impressum, den Allgemeinen Geschäftsbedingungen, den Hinweisen zum Datenschutz und nutzungsbasierter Online-Werbung.