

Sternlage Immobilien GmbH
Frau Alexandra Knoll
043 ···
Nr. anzeigenPreise & Kosten
Provision für Käufer
4,17 % inkl. MwSt.
Lage
Das charmante Bauernhaus befindet sich in der idyllischen Gemeinde Großenbrode, einer malerischen Küstenstadt an der Ostsee in Deutschland. Diese Region zeichnet sich durch ihre naturnahe Umgebung und ihre maritime Atmosphäre aus, die sowohl Einheimische als auch Besucher gleichermaßen begeistert. Großenbrode ist bekannt für...
Das Haus
Baujahr
1832
Bezug
nach Vereinbarung
Energie & Heizung
Warum sehe ich diese Anzeige? – Du siehst diese Anzeige basierend auf Ihrer Navigation auf unserer Website und den Suchkriterien, die du verwendet hast.
Energieausweistyp
Bedarfsausweis
Gebäudetyp
Wohngebäude
Baujahr laut Energieausweis
1800
Wesentliche Energieträger
GAS
Gültigkeit
bis 15.05.2035
Effizienzklasse
E
Endenergiebedarf
138,50 kWh/(m²·a)
Weitere Energiedaten
Energieträger
Gas, Solar
Heizungsart
Fußbodenheizung
Details
Objektbeschreibung
Willkommen auf dem "Kathrinenhof", einem historischen Anwesen, das ländliche Idylle, modernen Wohnkomfort und vielfältige Nutzungsmöglichkeiten harmonisch miteinander vereint. Eingebettet in die ruhige Natur Schleswig-Holsteins, liegt dieses außergewöhnliche Ensemble nur einen Kilometer von der Ostseeküste entfernt in der...
Ausstattung
- Kernsaniertes Anwesen
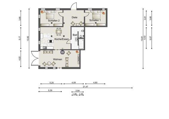
- Haupthaus ca. 386,58 m² Wohnfläche
- ehemaliger Kleintierstall mit Fitnessraum, Sauna und großem Ruheraum mit Kaminofen
- ehemalige Scheune mit 2 Wohneinheiten von ca. 243,49 m² Wohnfläche
- überwiegend Fußbodenheizung, teilweise Wandheizkörper
- komplett erneuerte Haustechnik...
Weitere Informationen
Sonstiges
Der Makler-Vertrag mit uns kommt durch schriftliche Vereinbarung oder durch die Inanspruchnahme unserer Maklertätigkeit auf der Basis der Informationen im Objekt-Exposé und seiner Bedingungen zustande.
Alle Informationen beruhen auf Angaben des Verkäufers und weiterer Unterlagen. Evtl. beigefügte...
Anbieter der Immobilie

Online-ID: 2n8ug5b
Referenznummer: SL7152
Finde Angebote wie dieses
Hier geht es zu unserem Impressum, den Allgemeinen Geschäftsbedingungen, den Hinweisen zum Datenschutz und nutzungsbasierter Online-Werbung.