

Immobilien Streffing GmbH & Co. KG
Herr Daniel Streffing
+49 ···
Nr. anzeigenPreise & Kosten
Kaution
6.300,00
Provision für Mieter
2,38MM inkl. MwSt.
Warum sehe ich diese Anzeige? – Du siehst diese Anzeige basierend auf Ihrer Navigation auf unserer Website und den Suchkriterien, die du verwendet hast.
Lage
Die angebotene Gewerbefläche befindet sich in Koblenz im etablierten Industrie- und Gewerbegebiet Rheinhafen. Der Standort überzeugt durch seine verkehrsgünstige Anbindung: Die Bundesstraße B9 ist in unmittelbarer Nähe gelegen und ermöglicht eine schnelle Erreichbarkeit wichtiger Verkehrsadern wie der B42 sowie der Autobahnen...
Büro-/Praxisfläche
Kategorie
Bürofläche
Bezug
nach Vereinbarung
Details
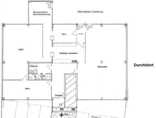
Objektbeschreibung
Herzlich willkommen in Koblenz,
herzlich willkommen in Ihrer neuen Wertschöpfungszentrale!
Mit dieser gepflegten Gewerbeimmobilie dürfen wir Ihnen Ihre neue Geschäftsadresse in Koblenz präsentieren. In Vergangenheit wurde an dieser über viele Jahrzehnte ein erfolgreicher Elektrofachhandel betrieben. Mit einer...
Ausstattung
Die angebotene Gewerbefläche verfügt über nachfolgende Ausstattungsdetails:
. Toiletten Damen / Herren getrennt
. separate Teeküche
. Fenster mit ISO-Verglasung
. ca. 5 PKW-Stellplätze hinter dem Gebäude
. 4 Eingänge (1 Gebäudefront-, 3...
Weitere Informationen
Sonstiges
Das Baujahr und alle Maße sind ca.-Angaben, insbesondere die Mietfläche und die Grundstücksfläche sind vor Ort zu prüfen und sind beschreibend und keine wesentliche Eigenschaft. Wir sind für Mieter und Vermieter provisionsberechtigter Makler. Durch die Besichtigung eines von uns angebotenen Objektes oder durch...
Anbieter der Immobilie
Immobilien Streffing GmbH & Co. KG
Marktstraße 75, 56564 Neuwied

Online-ID: 2n8t65n
Referenznummer: 4469
Finde Angebote wie dieses
Hier geht es zu unserem Impressum, den Allgemeinen Geschäftsbedingungen, den Hinweisen zum Datenschutz und nutzungsbasierter Online-Werbung.