

birkelbach-immobilien
Herr/Frau Hans-Georg Birkelbach
061 ···
Nr. anzeigenPreise & Kosten
Provision für Käufer
Käuferprovision
Hinweis auf gesetzliche Teilung (§ 656c BGB)
Die Maklercourtage wird gemäß den gesetzlichen Bestimmungen zwischen Käufer und Verkäufer zu gleichen Teilen aufgeteilt und beträgt jeweils 3,57 % inkl. MwSt. des beurkundeten Kaufp
Lage
Lagebeschreibung / Location Description
Die Wohnung befindet sich in einer begehrten Wohnlage von Steinbach (Taunus), in der Niederhöchstädter Straße - eine gut angebundene, gleichzeitig ruhige Straße mit gewachsener Nachbarschaft.
The apartment is located in a highly desirable residential area of Steinbach (Taunus), on...
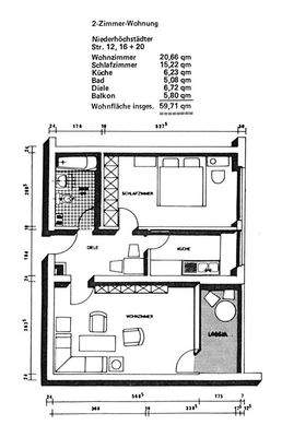
Die Wohnung
Wohnungslage
5. Geschoss
Bezug
SOFORT
Wohnanlage
Energie & Heizung
Warum sehe ich diese Anzeige? – Du siehst diese Anzeige basierend auf Ihrer Navigation auf unserer Website und den Suchkriterien, die du verwendet hast.
Energieausweistyp
Verbrauchsausweis
Gebäudetyp
Wohngebäude
Endenergieverbrauch
128,00 kWh/(m²·a)
Weitere Energiedaten
Heizungsart
Zentralheizung
Details
Objektbeschreibung
Kurzbeschreibung
Fenster sind weiß und doppeltverglaste Kunstoffenster.
Ein eigener Keller gehört dazu.
PKW-Stellplätze können vom Parkhausbetreiber auf dem Parkdeck ab ca. € 30,- mtl.
angemietet werden. Überdachte sind teurer.
Die gesamte Wohnanlage wurde stetig saniert.
Dächer, Fassade und Aufzüge wurden...
Ausstattung
Fenster sind weiß und doppeltverglaste Kunstoffenster.
Ein eigener Keller gehört dazu.
Weitere Informationen
Sonstiges
ÖPNV (Bus & Bahn)
Bushaltestelle "Niederhöchstädter Straße" - Linien 91, 252 (und teilweise 251) direkt vor Ort oder wenige Gehminuten (Bus?252 - Richtung Oberursel (via Weißkirchen) oder Richtung Eschborn Südbahnhof etc.
Fahrt ab Haltestelle ca. 13-19 Min z.?B. zum S-Bahn-Bahnhof Weißkirchen/Steinbach...
Anbieter der Immobilie
birkelbach-immobilien
Im Unteren Stichel 9A, 61350 Bad Homburg

Online-ID: 2n8pb5d
Referenznummer: 95
Finde Angebote wie dieses
Hier geht es zu unserem Impressum, den Allgemeinen Geschäftsbedingungen, den Hinweisen zum Datenschutz und nutzungsbasierter Online-Werbung.