
MSE-HAUS GmbH
Herr Moritz Schulz
004 ···
Nr. anzeigenPreise & Kosten
Provision für Käufer
3,57% inkl. MwSt inkl. MwSt.
Lage
Die Immobilie befindet sich in ruhiger und dennoch verkehrsgünstiger Lage im Quitzerower Weg 11 in 17109 Demmin, einer traditionsreichen und charmanten Kleinstadt im Landkreis Mecklenburgische Seenplatte. Demmin zeichnet sich durch seine zentrale Lage zwischen den Städten Neubrandenburg, Greifswald und Stralsund sowie durch...
Das Haus
Kategorie
Doppelhaushälfte
Energie & Heizung
Warum sehe ich diese Anzeige? – Du siehst diese Anzeige basierend auf Ihrer Navigation auf unserer Website und den Suchkriterien, die du verwendet hast.
Energieausweistyp
Bedarfsausweis
Gebäudetyp
Wohngebäude
Baujahr laut Energieausweis
1930
Wesentliche Energieträger
ERDGAS_LEICHT
Gültigkeit
bis 08.02.2036
Effizienzklasse
F
Endenergiebedarf
178,50 kWh/(m²·a)
Weitere Energiedaten
Energieträger
Gas
Details
Objektbeschreibung
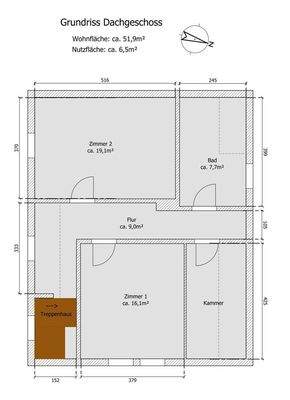
Zum Verkauf steht eine massiv errichtete Doppelhaushälfte aus dem Baujahr ca. 1930, die sich in einem gepflegten und zeitgemäß modernisierten Zustand präsentiert. Die Immobilie ist teilunterkellert und verfügt über Erdgeschoss und Dachgeschoss. Die Wohnfläche beträgt ca. 130,5 m², das großzügige Grundstück misst ca. 1.200...
Ausstattung
- Massive Bauweise
- Baujahr ca. 1930
- Teilunterkellert
- Dach erneuert ca. 1990
- Fenster erneuert ca. 2000
- Trockenlegung des Gebäudes ca. 2021
- Gas-Zentralheizung mit Anschluss an die Straße
- Zeitgemäße Innenausstattung auf beiden Etagen
- Moderne Bodenbeläge
- Einbauküche mit...
Preisinformation
2 Stellplätze
1 Garagenstellplatz
Weitere Informationen
Sonstiges
Es werden keine Anfragen, ohne vollständigen Namen/Vornamen, der Anschrift und einer Telefonnummer beantwortet. Weitere interessante Miet- Kauf- und Neubauangebote aus unserem Portfolio finden Sie auf unserer Homepage unter www.mse-haus.de
Sehr gerne können Sie auch telefonisch mit uns Kontakt aufnehmen...
Anbieter der Immobilie
MSE-HAUS GmbH
Wilhelm-Stolte-Straße 84, 17235 Neustrelitz
Online-ID: 2n8ns5f
Referenznummer: 561
Finde Angebote wie dieses
Hier geht es zu unserem Impressum, den Allgemeinen Geschäftsbedingungen, den Hinweisen zum Datenschutz und nutzungsbasierter Online-Werbung.