

Sparkasse Chemnitz, Immobilien, in Vertretung der LBS IMMOBILIEN GMBH Nordost
Frau Salome Frank
037 ···
Nr. anzeigenPreise & Kosten
Provision für Käufer
3,57 % inkl. MwSt.
Lage
Dittersdorf ist ein Teil der Gemeinde Amtsberg im Erzgebirgskreis. Der Ort liegt ca. 8 km südlich von Chemnitz und ca. 5 km westlich von Zschopau. Derzeit zählt der Ortsteil ca. 2.000 Einwohner. Sozialeinrichtungen, Kindergarten, Schule und Einkauf befinden sich in direkter Nachbarschaft.
Eine ruhige Lage und dennoch...
Das Haus
Kategorie
Reihenendhaus
Baujahr
1989
Energie & Heizung
Warum sehe ich diese Anzeige? – Du siehst diese Anzeige basierend auf Ihrer Navigation auf unserer Website und den Suchkriterien, die du verwendet hast.
Energieausweistyp
Bedarfsausweis
Gebäudetyp
Wohngebäude
Baujahr laut Energieausweis
1989
Wesentliche Energieträger
Gas, Elektroenergie
Gültigkeit
12.05.2025 bis 11.05.2035
Effizienzklasse
A
Endenergiebedarf
45,60 kWh/(m²·a)
Weitere Energiedaten
Haustyp
Massivhaus
Energieträger
Elektro, Gas
Heizungsart
Zentralheizung
Details
Objektbeschreibung
Ihre Chance auf ein seltenes Angebot in sehr idyllischer Lage!
Das 1989 erbaute Reihenendhaus wurde 1996 umfassend saniert und in Wohneigentum aufgeteilt. Es besteht aus zwei Wohneinheiten, die Teil der Eigentümergemeinschaft sind.
Auf Grund der Aufteilung bietet es sich optimal an, das Objekt mit zwei Generationen...
Ausstattung
. Reihenendhaus, in Wohneigentum (2 Einheiten) aufgeteilt
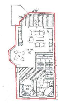
. Gesamtwohnfläche ca. 133,65 m²
. Wohnung Keller/EG mit ca. 65,94 m² Wfl., Balkon und Terrasse
. Wohnung OG/DG mit ca. 67,71 m² Wfl. mit Balkon
. Einzelgarage mit Spitzboden
. 4 Stellplätze am Haus
. Wallbox vor dem Haus
. Doppelcarport
...
Weitere Informationen
Sonstiges
Alle Angaben haben wir vom Auftraggeber erhalten. Für deren Richtigkeit können wir keine Gewähr übernehmen. Einen Zwischenverkauf behält sich der Auftraggeber/Verkäufer ausdrücklich vor.
Wir bitten um Verständnis, dass wir nur vollständige, schriftliche Anfragen (E-Mail, Fax, Brief) mit Namen, Anschrift...
Anbieter der Immobilie
Sparkasse Chemnitz, Immobilien, in Vertretung der LBS IMMOBILIEN GMBH Nordost
Bahnhofstraße 51, 09111 Chemnitz

Online-ID: 2n8mj5n
Referenznummer: 170-2727
Finde Angebote wie dieses
Hier geht es zu unserem Impressum, den Allgemeinen Geschäftsbedingungen, den Hinweisen zum Datenschutz und nutzungsbasierter Online-Werbung.