

Wentzel Dr. Vertriebs GmbH
Herr Erik Ludwig Keppler
015 ···
Nr. anzeigenPreise & Kosten
Provision für Käufer
Bitte beachte, das Angebot kann bei Vertragsabschluss die Zahlung einer Provision beinhalten. Weitere Informationen erhältst Du vom Anbieter.
Lage
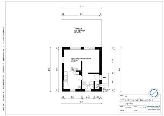
Die Immobilie befindet sich in der Rudolf-Gebauer-Straße in 01809 Dohna, in einer ruhigen und familienfreundlichen Wohnlage mit überwiegend Einfamilienhausbebauung und geringem Durchgangsverkehr. Die unmittelbare Umgebung bietet ein angenehmes, gewachsenes Wohnumfeld und eignet sich ideal für Familien.
Ein besonderer...
Das Haus
Kategorie
Einfamilienhaus
Baujahr
1934
Bezug
nach Vereinbarung
Energie & Heizung
Warum sehe ich diese Anzeige? – Du siehst diese Anzeige basierend auf Ihrer Navigation auf unserer Website und den Suchkriterien, die du verwendet hast.
Energieausweistyp
Bedarfsausweis
Gebäudetyp
Wohngebäude
Wesentliche Energieträger
GAS
Gültigkeit
bis 28.03.2026
Effizienzklasse
H
Endenergiebedarf
291,00 kWh/(m²·a)
Weitere Energiedaten
Haustyp
Massivhaus
Details
Objektbeschreibung
Dieses freistehende Einfamilienhaus aus dem Jahr 1934 vereint den charmanten Charakter eines Altbaus mit modernem Wohnkomfort. Das Haus wurde in den Jahren 2018 bis 2022 umfassend und hochwertig saniert. Dabei wurden unter anderem Elektrik, Wasser- und Abwasserleitungen, Dacheindeckung, Fassade sowie der komplette Innenausbau...
Weitere Informationen
Sonstiges
Hinweis: Die Verkäufer beabsichtigen, nach dem Verkauf vorübergehend noch in der Immobilie zu verbleiben, bis eine geeignete Ersatzwohnung gefunden wurde. Für diesen Zeitraum wird eine ortsübliche Miete gezahlt. Die genauen Modalitäten (Dauer, Miethöhe etc.) werden vertraglich geregelt.
Immobilienbewertung...
Dokumente
Anbieter der Immobilie
Wentzel Dr. Vertriebs GmbH
Stresemannallee 102-104, 22529 Hamburg

Online-ID: 2n8lz5y
Referenznummer: W-K-L-26-004
Finde Angebote wie dieses
Hier geht es zu unserem Impressum, den Allgemeinen Geschäftsbedingungen, den Hinweisen zum Datenschutz und nutzungsbasierter Online-Werbung.