
OKAL Haus Ost
Herr Frank Weigelt
Kontaktiere den Anbieter schriftlich, es ist keine Telefonnummer hinterlegt.
Preise & Kosten
Provision für Käufer
7,14% auf den Grundstücksanteil
Lage
Das Grundstück befindet sich in einer der gefragtesten Wohnlagen im südlichen Berlin, im grünen und gewachsenen Ortsteil Lichtenrade, in unmittelbarer Nähe zum Wäldchen am Königsgraben. Die Umgebung ist geprägt von ruhiger Ein- und Zweifamilienhausbebauung, viel Grün und einer angenehm entspannten Nachbarschaft - ideal für...
Das Haus
Kategorie
Einfamilienhaus
Bezug
0
Details
Objektbeschreibung
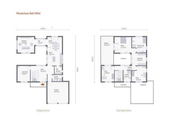
Ausgezeichnet mit dem German Design Award steht "Bad Vilbel" für inspirierende Architektur, optimale Grundstücksnutzung und ein Höchstmaß an Energieeffizienz.
An das großzügige Hauptgebäude mit Satteldach schließt sich im Erdgeschoss der kubistische Anbau an, der vielfältige Nutzungsmöglichkeiten bietet. Durch die...
Ausstattung
OKAL baut einzugsfertig. Das bedeutet für Sie, dass alle Leistungen rund um das Haus von uns erledigt werden. Von A wie Architektenleistung bis Z wie Zimmermann. Und die Bauendreinigung erfolgt auch durch uns.
+ Architektenleistung
+ Bauantrag und statische Berechnungen
+ auf Wunsch Vermessungsleistungen
+ freie...
Weitere Informationen
Sonstiges
Die Entscheidung ist gefallen, die Planung steht, OKAL hat überzeugt. Jetzt fehlt nur noch das passende Grundstück. Es gibt gute Gründe, alle weiteren Schritte nicht mehr auf die lange Bank zu schieben und die Grundstückssuche zu forcieren. Dabei helfen Kreativität und Tatkraft, denn irgendwo wartet auch Ihr...
Anbieter der Immobilie
OKAL Haus Ost
Berlin, Leipzig, Dresden, Erfurt, OKAL Haus
Herr Frank Weigelt
Dein Ansprechpartner
Kontaktiere den Anbieter schriftlich, es ist keine Telefonnummer hinterlegt.
Online-ID: 2n8jr5n
Referenznummer: KV/2026/02/25-04
Finde Angebote wie dieses
Hier geht es zu unserem Impressum, den Allgemeinen Geschäftsbedingungen, den Hinweisen zum Datenschutz und nutzungsbasierter Online-Werbung.